Attraktive Büro- oder Praxisfläche in den "Zollstock Arkaden"
Objekt melden
14 € (m²)
Mietpreis pro m²391 m²
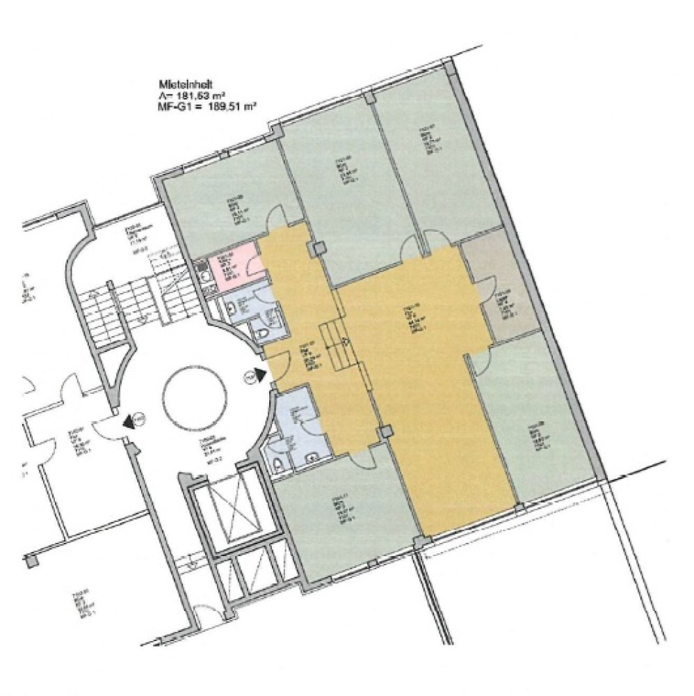
Bürofläche190 m²
teilbar abab Mai 2026 bzw. nach Vereinbarung
Verfügbar abAdresse
50969 Köln
Download
Preise & Kosten
Angaben zur Immobilie
Objektbeschreibung
Die angebotene Büro- oder Praxisfläche befindet sich in den 1991 errichteten Zollstock-Arkaden. Hauptmieter der Arkaden sind Aldi, Rewe, Rossmann und TEDI. In den Obergeschossen haben sich hauptsächlich Ärzte/ Therapeuten und Nutzer aus dem juristischen Bereich angesiedelt. Die vakante Bürofläche im 1.OG ist mit einem PVC-Boden in Holzoptik ausgestattet und kurzfristig anmietbar. In der hauseigenen Tiefgarage besteht die Möglichkeit bis zu 1h frei zu parken oder ein festes Stellplatzkontigent zu sichern.
Energieausweis
138.6 kWh/(a·m²)
Lage
- Stadtteil: Zollstock
- Nahversorgung: Cafés, Restaurant und Lebensmittelmarkt im Objekt
- Fußweg öffentl. Verkehr: 5 min
- Fahrzeit Autobahn: 7 min
- Fahrzeit Hauptbahnhof: 10 min
- Fahrzeit Flughafen: 25 min
- Straßenbahn: Linie 12 Haltestelle Pohilgstraße
- Bus: Linie 142 Haltestelle Pohligstraße; Linie 131 Haltestelle Gottesweg
- Autobahn: A4 Richtung Aachen/ Bergisch Gladbach, Olpe
Ausstattung
Sonstiges
Sie haben noch nicht das richtige gefunden? Sprechen Sie uns an und lassen Sie uns die Arbeit machen. Gemeinsam finden wir Ihre Wunschimmobilie und beraten Sie gerne bei Ihrer Anmietung.
Der guten Ordnung halber, möchten wir Sie darauf aufmerksam machen, dass im Falle eines Vertragsabschlusses, bei nicht als provisionsfrei gekennzeichneten Objekten eine laufzeitabhängige Provision zzgl. gesetzlicher Umsatzsteuer gemäß unserer Allgemeinen Geschäftsbedingungen für Sie als Auftraggeber fällig wird. Die Höhe der Provision können Sie unter www.dgi-koeln.de einsehen.
Kontaktanfrage
Dederichs & Göttlicher Immobilien GmbH