Moderne Büros mit bodentiefen Fenstern am Deutzer Feld
Objekt melden
17 € (m²)
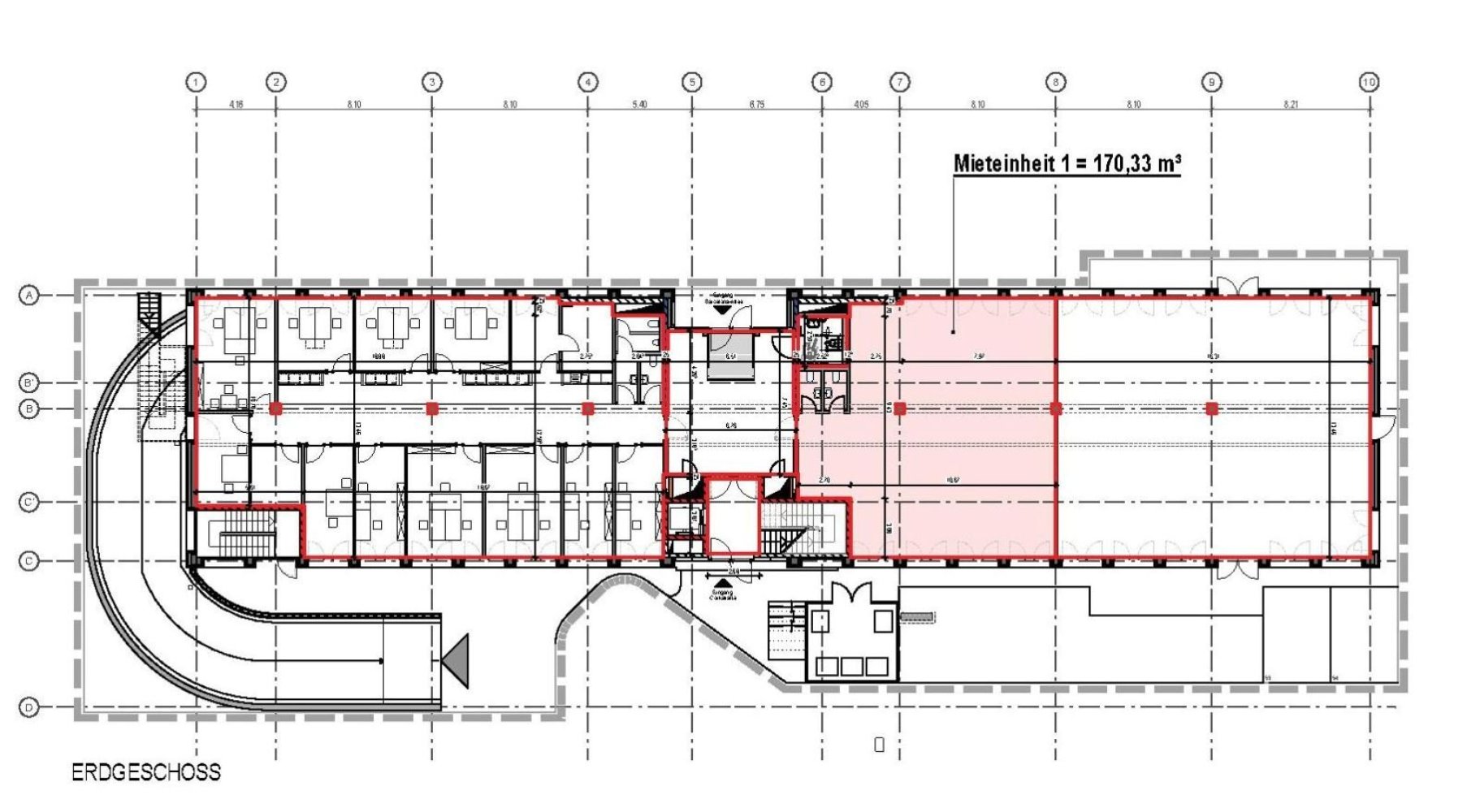
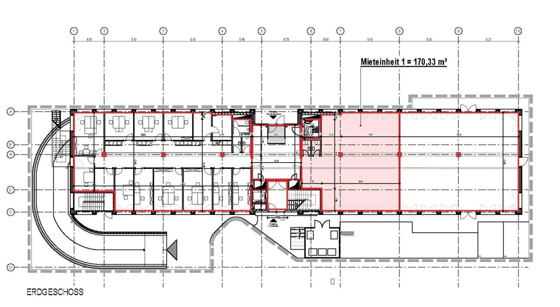
Mietpreis pro m²781 m²
Bürofläche204 m²
teilbar ab01.05.2026 bzw. nach Vereinbarung
Verfügbar abAdresse
51103 Köln
Download
Preise & Kosten
Angaben zur Immobilie
Objektbeschreibung
Das 5-geschossige Büro- und Geschäftshaus befindet sich im Kölner Stadtteil Kalk und überzeugt durch seine moderne Architektur. Die Sichtbetonfassade und bodentiefen Fenster verleihen dem Gebäude ein repräsentatives und zeitgemäßes Erscheinungsbild.
Die aktuell vakanten Mietflächen sind hochwertig ausgestattet: Im Flurbereich wurde ein Designboden in Holzoptik verlegt, während die Büroräume über einen anthrazitfarbenen Teppichboden verfügen. Hohe Decken schaffen ein sehr angenehmes Raumgefühl, das eine produktive und zugleich wohltuende Arbeitsatmosphäre ermöglicht.
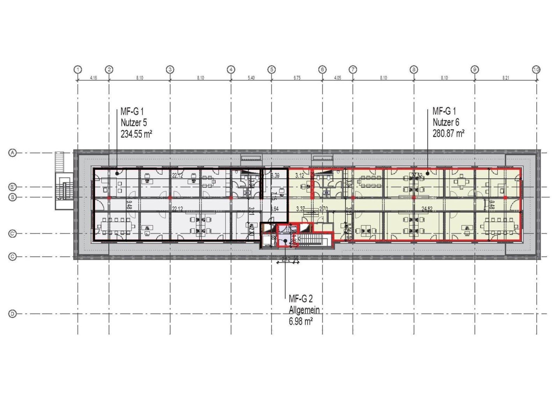
Der Grundriss bzw. die Wandstellungen können flexibel an die Anforderungen des zukünftigen Mieters angepasst werden.
Stellplätze stehen auf Wunsch zusätzlich zur Anmietung bereit.
Lage
- Stadtteil: Kalk
- Nahversorgung: Restaurants, Bistros, Geschäfte des täglichen Bedarfs
- Fußweg öffentl. Verkehr: 5 min.
- Fahrzeit Autobahn: 3 min.
- Fahrzeit Hauptbahnhof: 10 min.
- Fahrzeit Flughafen: 20 min.
- Bus: Linie 159
- S-Bahn: S12, 13 Haltestelle Trimbornstraße
- Regionalverkehr: RB 25 Haltestelle Trimbornstraße
- Autobahn: A559 Richtung Bonn, Anbindung: A4 Richtung Köln-Ost und A3 Richtung Frankfurt am Main und Oberhausen
Ausstattung
Sonstiges
Sie haben noch nicht das richtige gefunden? Sprechen Sie uns an und lassen Sie uns die Arbeit machen. Gemeinsam finden wir Ihre Wunschimmobilie und beraten Sie gerne bei Ihrer Anmietung.
Der guten Ordnung halber, möchten wir Sie darauf aufmerksam machen, dass im Falle eines Vertragsabschlusses, bei nicht als provisionsfrei gekennzeichneten Objekten eine laufzeitabhängige Provision zzgl. gesetzlicher Umsatzsteuer gemäß unserer Allgemeinen Geschäftsbedingungen für Sie als Auftraggeber fällig wird. Die Höhe der Provision können Sie unter www.dgi-koeln.de einsehen.
Wir möchten Sie darüber informieren, dass seit dem 01. Mai 2014 die zweite Verordnung zur Änderung der Energieeinsparverordnung ihre Gültigkeit erlangt hat.
Kontaktanfrage
Dederichs & Göttlicher Immobilien GmbH