Identifikator: 5008667

Dachgeschosswohnung mit Galeriegeschoss und großem Balkon in Müngersdorf

Objekt melden

* Pflichtfelder

Objektbeschreibung

Traumhafte 2,5 Zimmer Dachgeschosswohnung mit Galerie sucht neuen Besitzer!

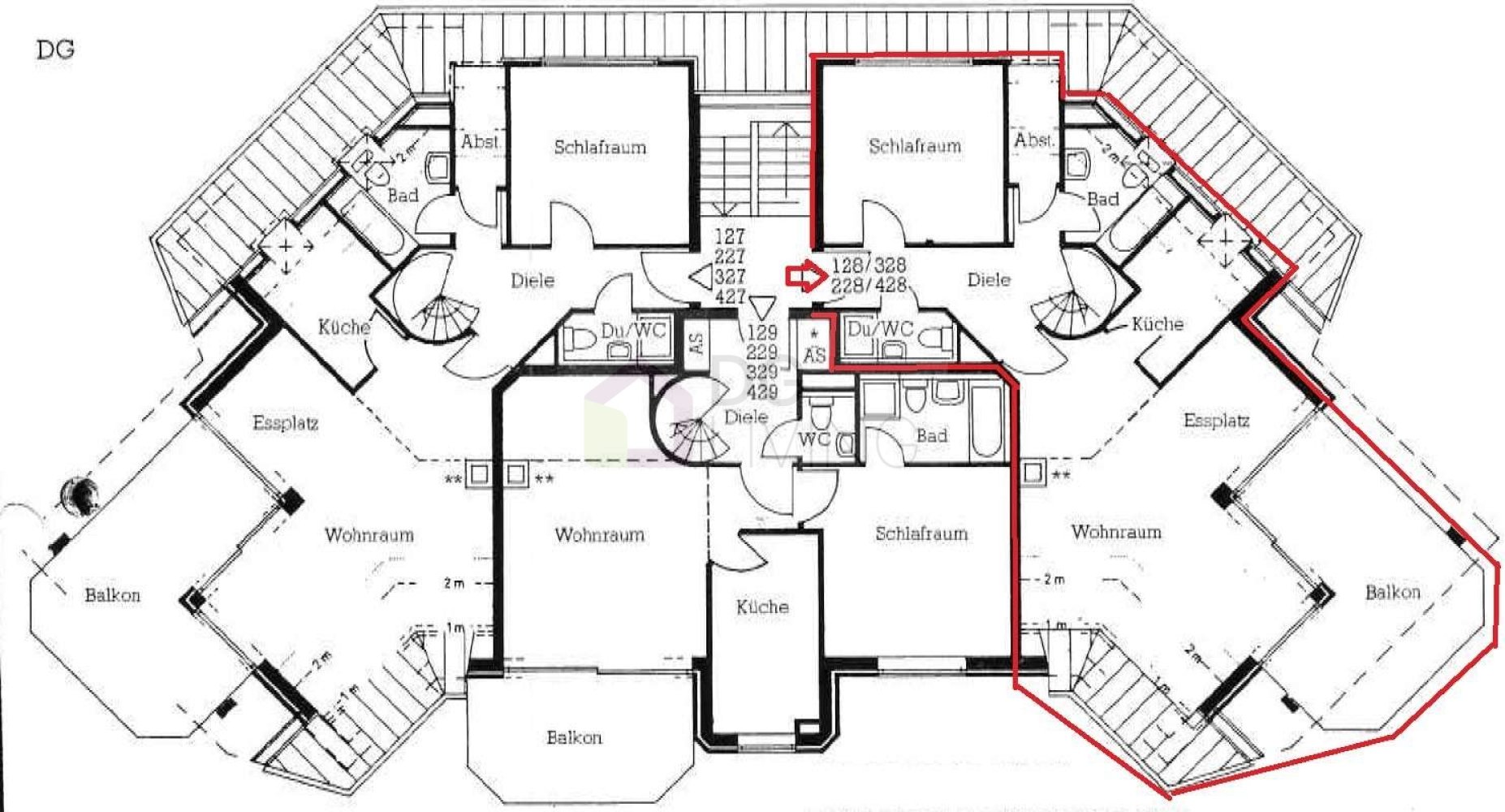
Tauchen Sie ein in die besondere Atmosphäre dieser charmanten Dachgeschosswohnung aus dem Jahr 1986, welche in den letzten Jahren fortlaufend modernisiert wurde. Auf ca. 84 Quadratmetern erwartet Sie ein gemütliches Zuhause mit viel Platz zum Wohlfühlen.

Durch die Diele gelangen Sie in das geräumige Schlafzimmer und das Gäste-WC. Im zentralen Bereich der Wohnung befinden sich die Küche und das lichtdurchflutete Badezimmer mit Wanne sowie eine Wendeltreppe, die zur Galerie führt. Der hintere Teil der Wohnung beherbergt den großzügigen Wohn- und Essbereich mit Zugang zum Balkon. Durch die offene Galerie, mit einer Größe von ca. 16 m², haben Sie durch die hohen Decken und vielen Fensterflächen im Wohn- und Essbereich ein außergewöhnliches Raumgefühl.

Das helle Tageslichtbad und ein separates Gäste-WC mit Dusche bieten zusätzlichen Komfort. Vom sonnigen Balkon genießen Sie einen herrlichen Blick ins Grüne. Zur Wohnung gehört eine liebevoll angelegte und gepflegte Grünanlage zur gemeinschaftlichen Nutzung.

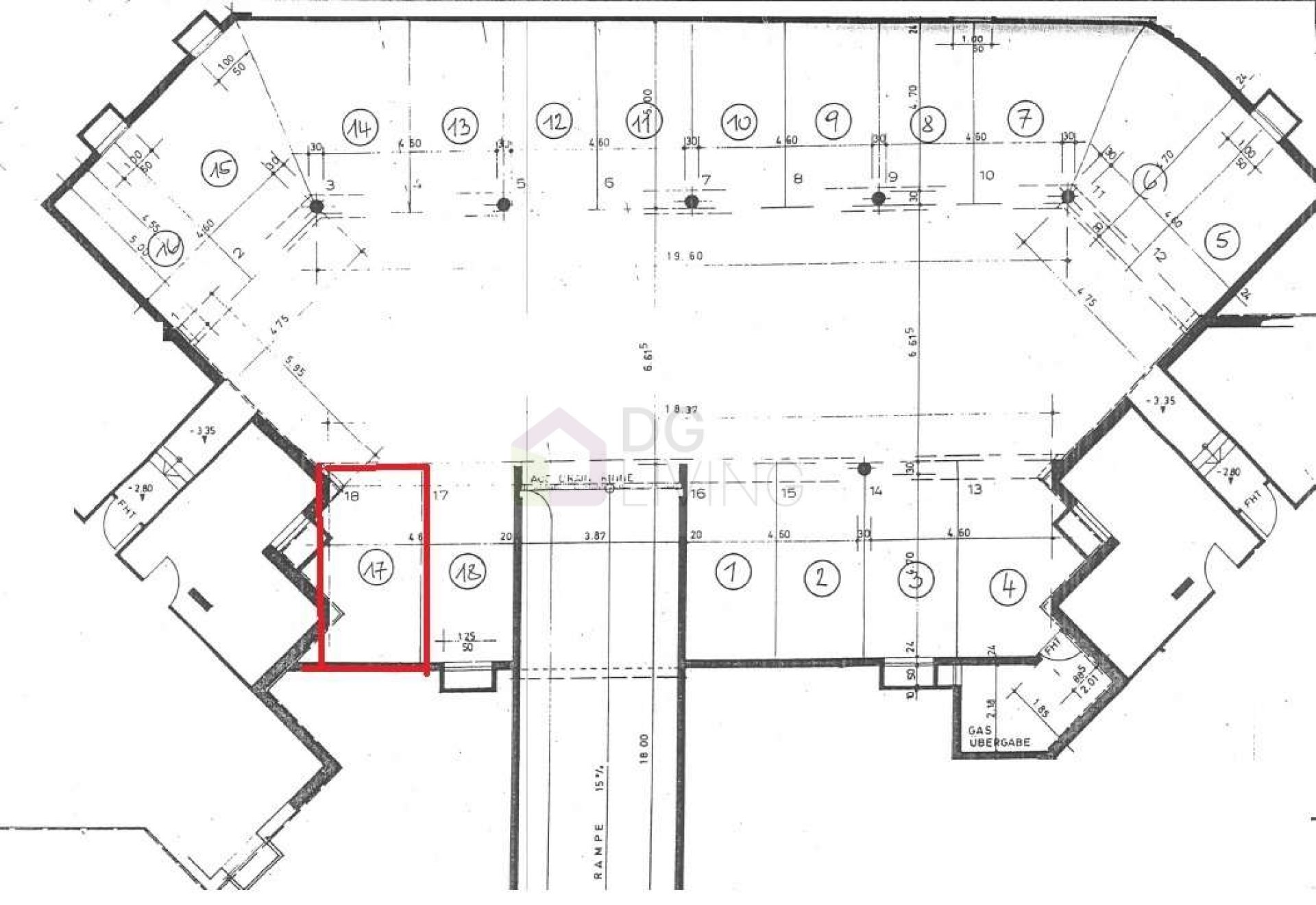
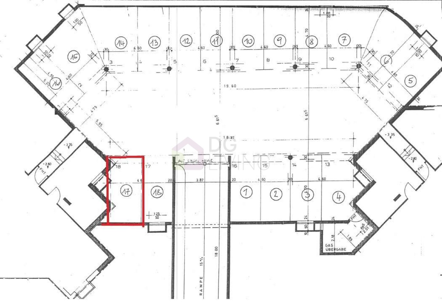
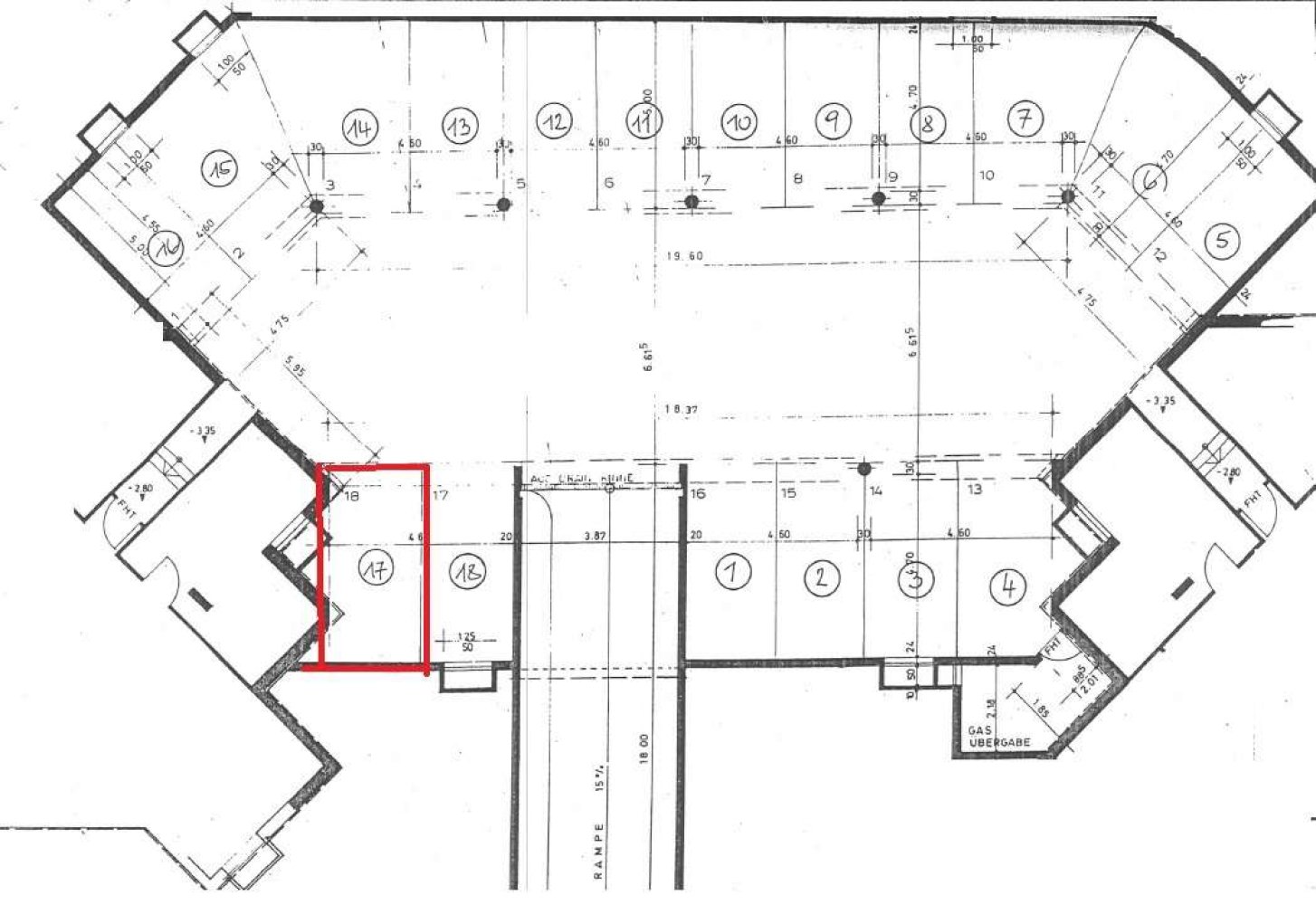
Die Wohnung befindet sich in einer ruhigen und gehobenen Wohngegend, die ideale Infrastruktur bietet. Einkaufsmöglichkeiten, Schulen und öffentliche Verkehrsmittel sind in der Nähe und größtenteils fußläufig zu erreichen. Ein Stellplatz steht in der hauseigenen Tiefgarage zur Verfügung. Der Zugang zur Wohnung ist trockenen Fußes möglich.

In den letzten Jahren wurden bereits umfangreiche und wichtige Sanierungen und Erneuerungen im Gebäude umgesetzt.

Im Einzelnen sind dies:

- Strangsanierung in 2022

- Einbau einer hybridfähige Gasheizung in 2024

- Wasserenthärtungsanlage in 2024

Die Wohnung ist seit mehreren Jahren vermietet. Um die Privatsphäre des derzeitigen Mieters zu schützen, enthält diese Anzeige keine aktuellen Innenfotos. Machen Sie sich gerne selbst ein Bild und vereinbaren mit uns einen Besichtigungstermin.

Energieverbrauchskennwert
164 kWh / (a·m²)
0
>250
Gebäudeart
Wohnimmobilie
Energieausweis
Verbrauch
Energieverbrauchskennwert
164
Energieeffizenzklasse
F
Primärenergieträger
Gas

Sonstiges

Der guten Ordnung halber, möchten wir Sie darauf aufmerksam machen, dass im Falle eines Vertragsabschlusses, bei nicht als provisionsfrei gekennzeichneten Objekten eine laufzeitabhängige Provision zzgl. gesetzlicher Umsatzsteuer gemäß unserer Allgemeinen Geschäftsbedingungen für Sie als Auftraggeber fällig wird. Die Höhe der Provision können Sie unter www.dgi-koeln.de einsehen.