Die Flächen lassen sich flexibel nach Mieterwunsch in Einzel-, Großraum- oder Kombibüros aufteilen. Ergänzt wird das Konzept durch integrierte Meetingzonen, Teeküchen sowie kommunikative Treffpunkte. Begrünte Bereiche und Aufenthaltszonen schaffen eine angenehme Balance zwischen konzentriertem Arbeiten und Austausch – und tragen so zu einer hohen Aufenthaltsqualität bei.
Repräsentative Büroflächen im "DOMINIUM"
Objekt melden
26 € (m²)
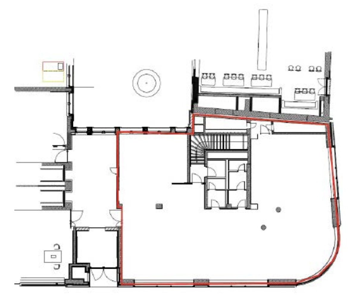
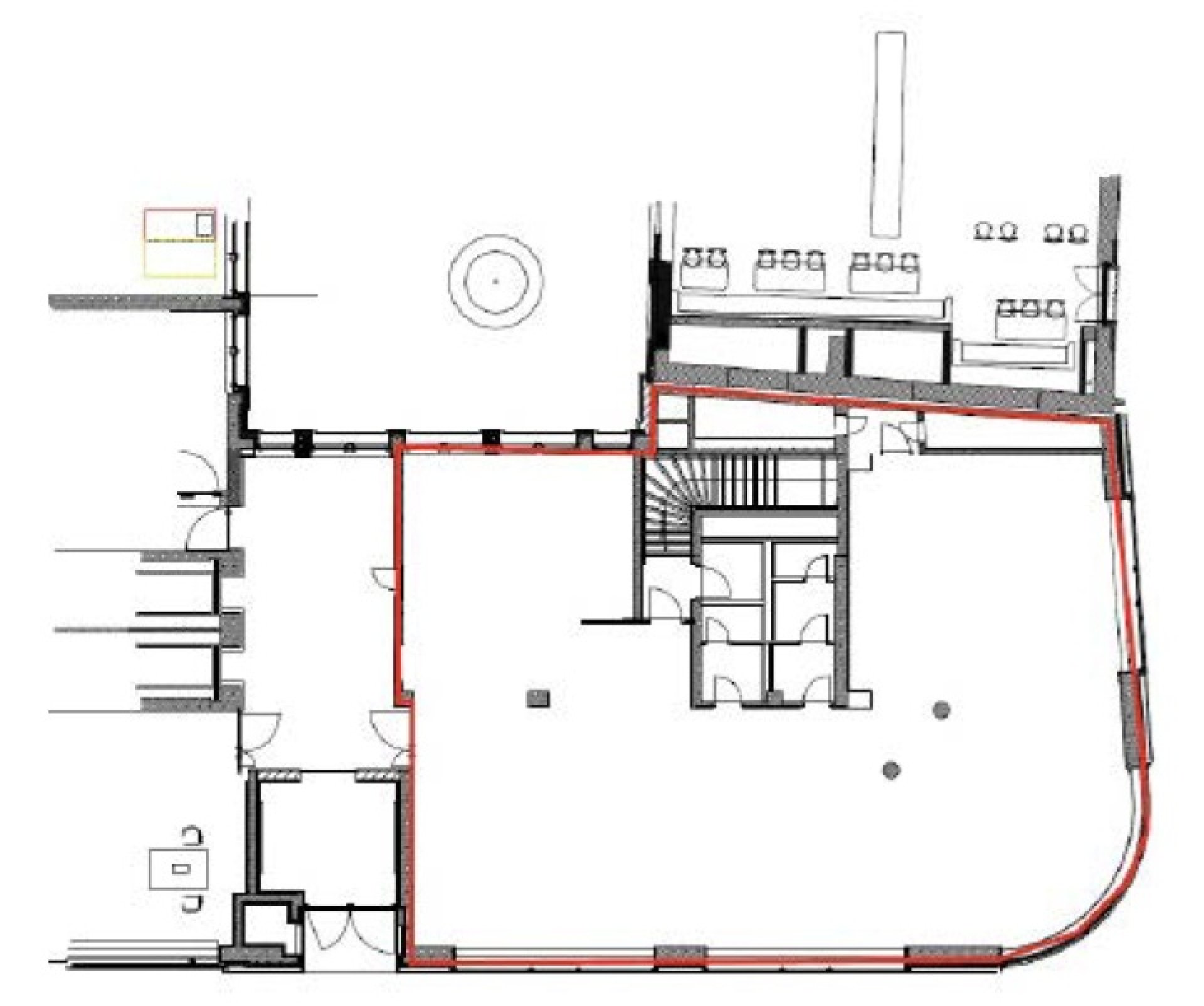
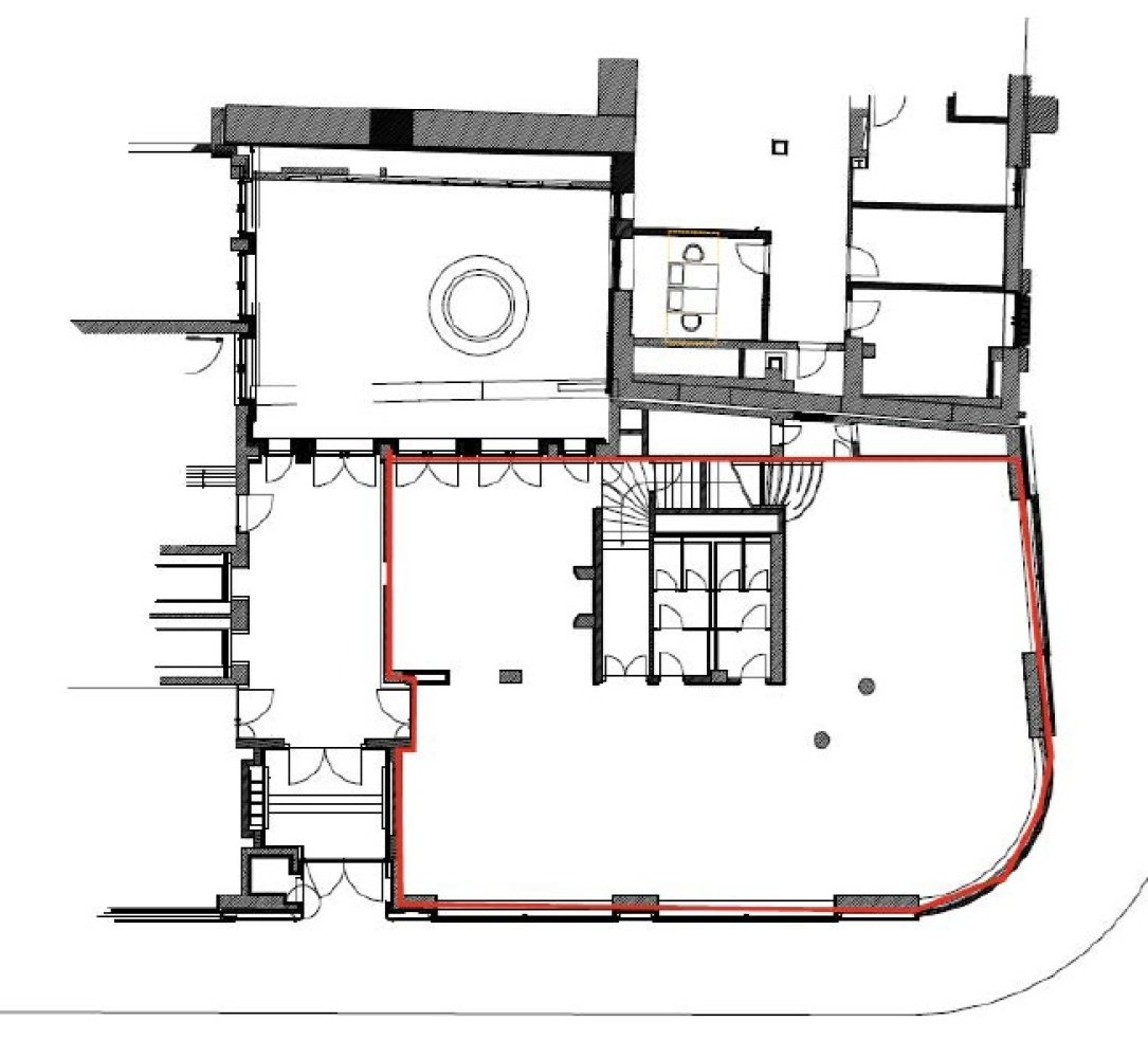
Mietpreis pro m²627 m²
Büroflächekurzfristig bzw. nach Vereinbarung
Verfügbar abAdresse
50667 Köln
Download
Preise & Kosten
Angaben zur Immobilie
Objektbeschreibung
Das Dominium wurde konzipiert, um eine ideale Arbeitsatmosphäre für Unternehmen zu schaffen. Entworfen wurde das Gebäude von einem der renommiertesten Architekten Deutschlands, Prof. Hans Kollhoff. Architektur und Design sind konsequent auf die Anforderungen moderner Arbeitswelten ausgerichtet. Hochwertige, authentische Oberflächen, harmonisch abgestimmte Farben und Materialien, ein durchdachtes Beleuchtungskonzept sowie eine intelligente Gebäudetechnik prägen die besondere Atmosphäre.
Ein eigener, exklusiver Eingangsbereich unterstreicht die repräsentative Wirkung der Fläche. Im Erdgeschoss befindet sich ein hochwertiger Showroom mit angeschlossenen Konferenzbereichen, die zuletzt von einer Privatbank genutzt wurden und entsprechend anspruchsvoll ausgestattet sind.
Energieausweis
247.5 kWh / (a·m²)
Lage
- Stadtteil: Bankenviertel
- Nahversorgung: Restaurants, Geschäfte des täglichen Bedarfs
- Fußweg öffentl. Verkehr: 2 min.
- Fahrzeit Autobahn: 7 min.
- Fahrzeit Hauptbahnhof: 1 min.
- Fahrzeit Flughafen: 27 min.
- Straßenbahn: Linien 3, 4, 5, 16, und 18 Haltestelle Appelhofplatz
- Autobahn: A57 Richtung Düsseldorf, Anbindung an A1 (Kreuz Köln Nord)
Des Weiteren ist der Hauptbahnhof mit sämtlichen Straßenbahnen, S-Bahnen und dem Regional- und Fernverkehr in
ca. 2 Gehminuten zu erreichen.
Ausstattung
Sonstiges
Sie haben noch nicht das richtige gefunden? Sprechen Sie uns an und lassen Sie uns die Arbeit machen. Gemeinsam finden wir Ihre Wunschimmobilie und beraten Sie gerne bei Ihrer Anmietung.
Der guten Ordnung halber, möchten wir Sie darauf aufmerksam machen, dass im Falle eines Vertragsabschlusses, bei nicht als provisionsfrei gekennzeichneten Objekten eine Provision zzgl. gesetzlicher Umsatzsteuer gemäß unserer Allgemeinen Geschäftsbedingungen für Sie als Auftraggeber fällig wird. Die Höhe der Provision können Sie unter www.dgi-koeln.de einsehen.
Kontaktanfrage
Dederichs & Göttlicher Immobilien GmbH