OPEN SPACE Büro in Bestlage direkt am Gürzenich
Objekt melden
20 € (m²)
Mietpreis pro m²3.375 m²
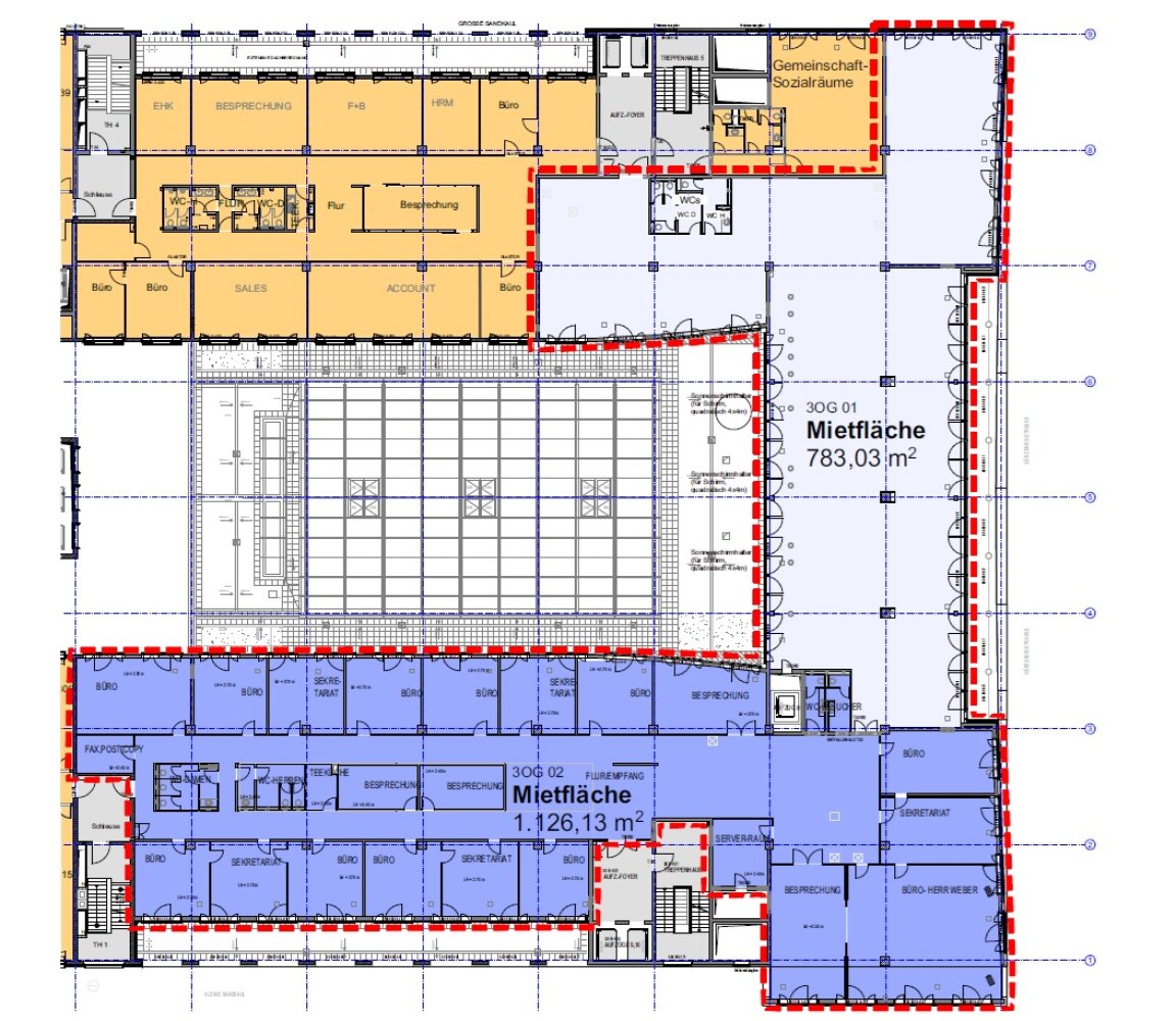
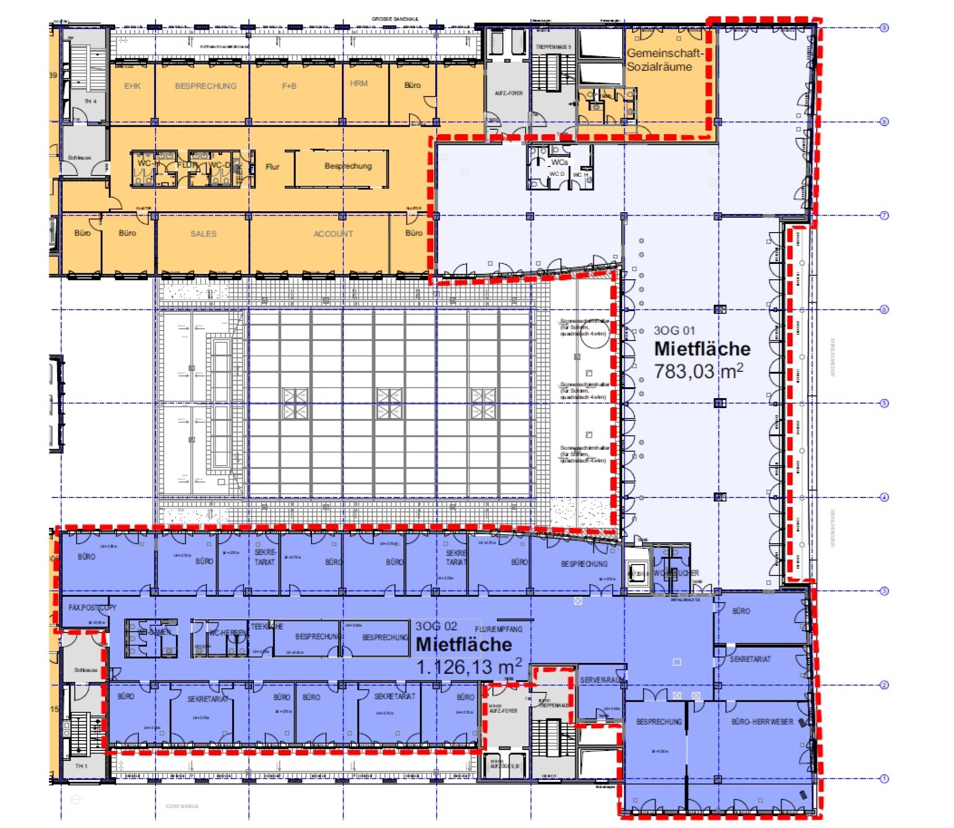
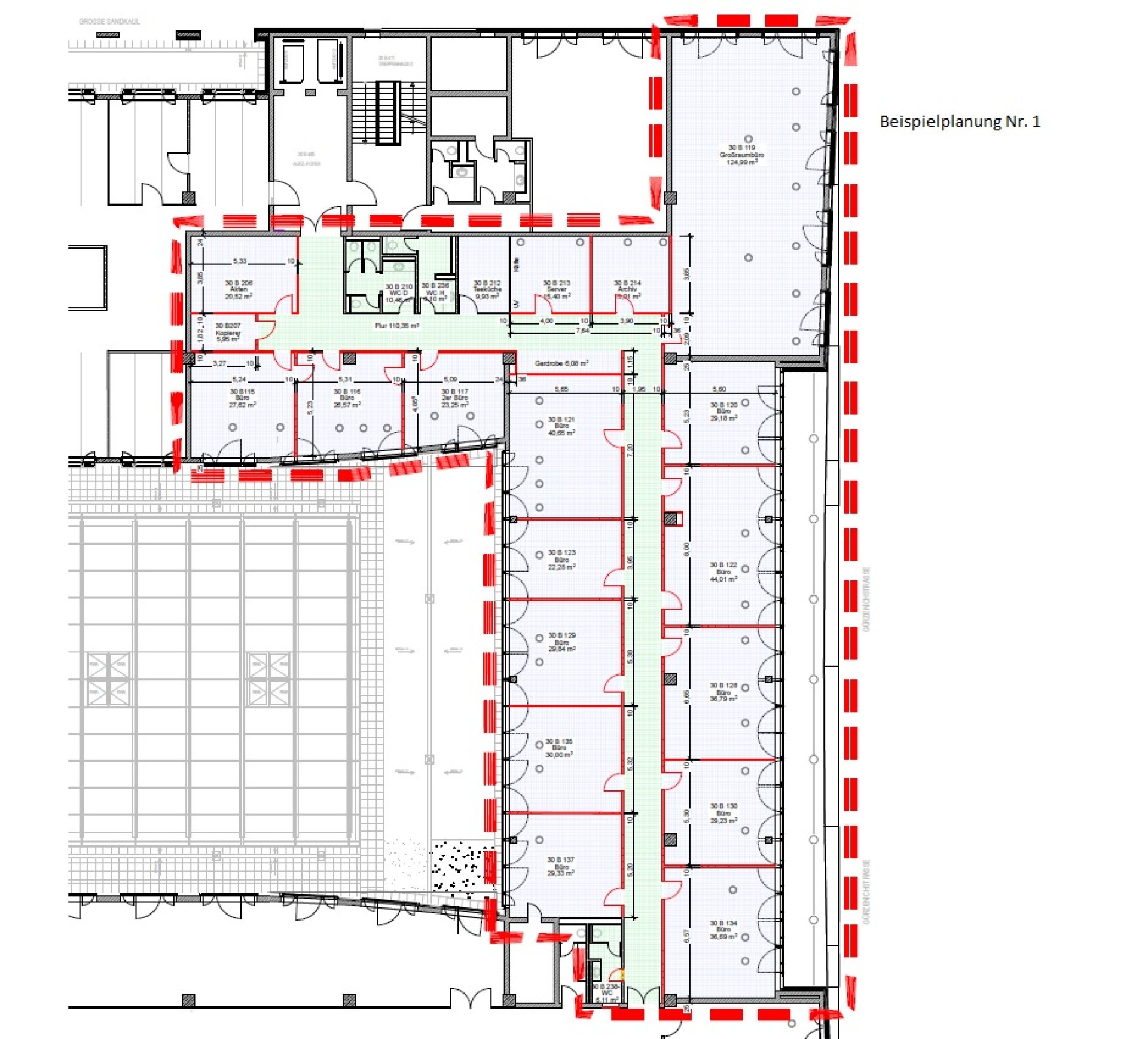
Bürofläche783 m²
teilbar ab5-6 Monate nach Mietvertragsunterschrift
Verfügbar abAdresse
50667 Köln
Download
Preise & Kosten
Angaben zur Immobilie
Objektbeschreibung
Die vielseitig gestaltbare Bürofläche auf einer der bekanntesten Straßen in Köln befindet sich in einem ansprechenden Zustand. Die vakante Mietfläche im 3.OG kann über den Personenaufzug oder das Treppenhaus erreicht werden und ist mit wenigen Maßnahmen an die Bedürfnisse des neuen Mieters anpassbar. Die hohe Frequentierung und die gute Erreichbarkeit des Gebäudes sorgen für eine ideale Anbindung. Stellplätze können in der objekteigenen Tiefgarage angemietet werden.
Energieausweis
Lage
- Stadtteil: Altstadt Süd
- Nahversorgung: Restaurants, Bistros,
Geschäfte des täglichen Bedarfs
- Fußweg öffentl. Verkehr: 3 min.
- Fahrzeit Autobahn: 5 min.
- Fahrzeit Hauptbahnhof: 3 min.
- Fahrzeit Flughafen: 20 min.
- Straßenbahn: Linie 1, 7, 9, 16, 18
Haltestelle Appelhofplatz, Heumarkt
- Bus: 136, 146 Haltestelle Heumarkt
- Autobahn: A559 Richtung Flughafen Köln/Bonn
Ausstattung
Sonstiges
Sie haben noch nicht das richtige gefunden? Sprechen Sie uns an und lassen Sie uns die Arbeit machen. Gemeinsam finden wir Ihre Wunschimmobilie und beraten Sie gerne bei Ihrer Anmietung.
Der guten Ordnung halber, möchten wir Sie darauf aufmerksam machen, dass im Falle eines Vertragsabschlusses, bei nicht als provisionsfrei gekennzeichneten Objekten eine laufzeitabhängige Provision zzgl. gesetzlicher Umsatzsteuer gemäß unserer Allgemeinen Geschäftsbedingungen für Sie als Auftraggeber fällig wird. Die Höhe der Provision können Sie unter www.dgi-koeln.de einsehen.
360° Rundgang
Kontaktanfrage
Dederichs & Göttlicher Immobilien GmbH