Die Deckenhöhe der Fläche mit bis zu 3,50 Metern im Zusammenhang mit den großen Altbaufenstern hat einen ganz besonderen Loft-Charme. Parkplätze stehen in den umliegenden Parkhäusern zur Verfügung.
Stylisches und kreatives Loftbüro in Neumarktnähe
Objekt melden
19,90 € (m²)
Mietpreis pro m²2.022 m²
Bürofläche264 m²
teilbar abkurzfristig bzw. nach Vereinbarung
Verfügbar abAdresse
50667 Köln
Download
Preise & Kosten
Angaben zur Immobilie
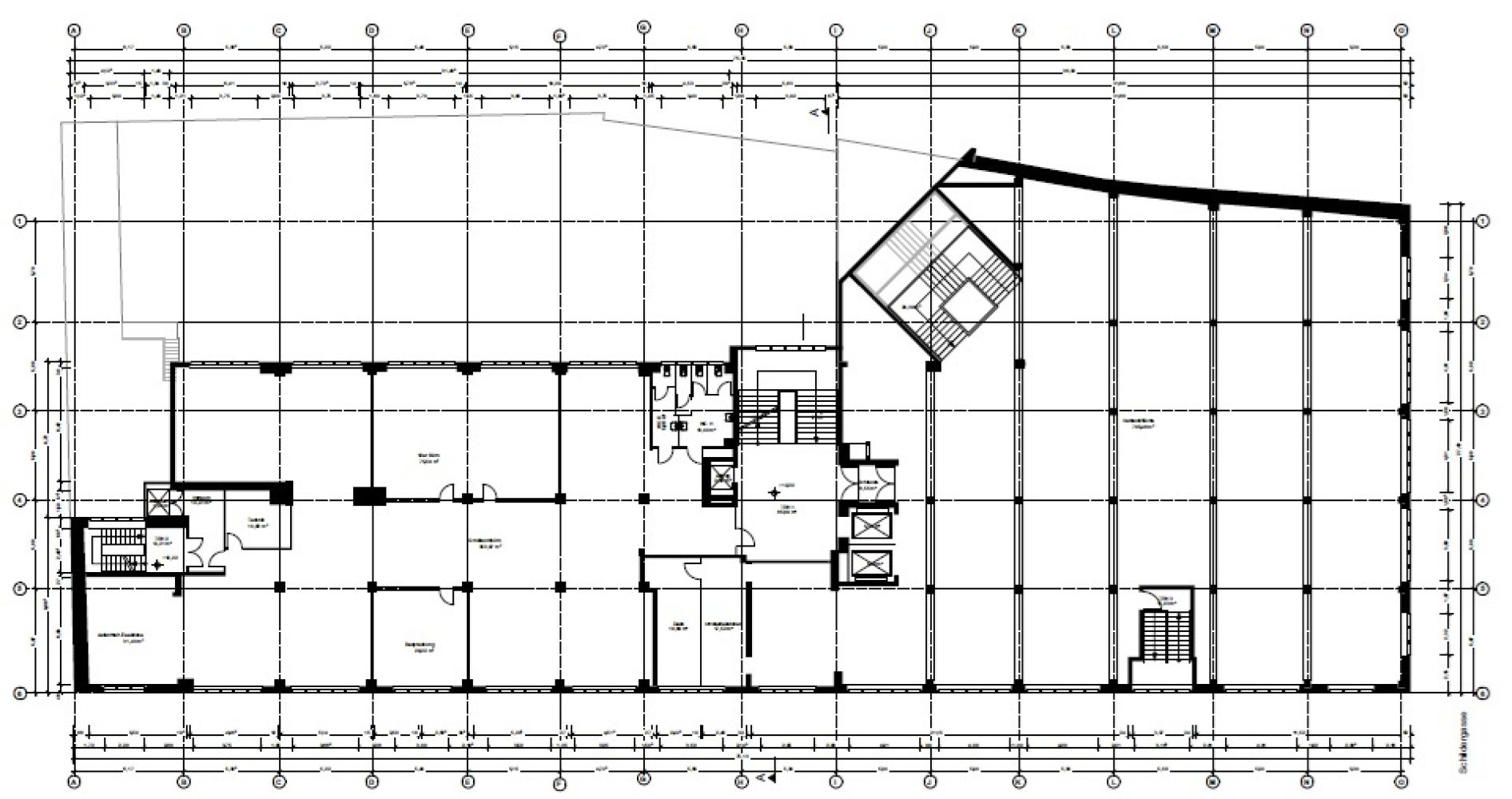
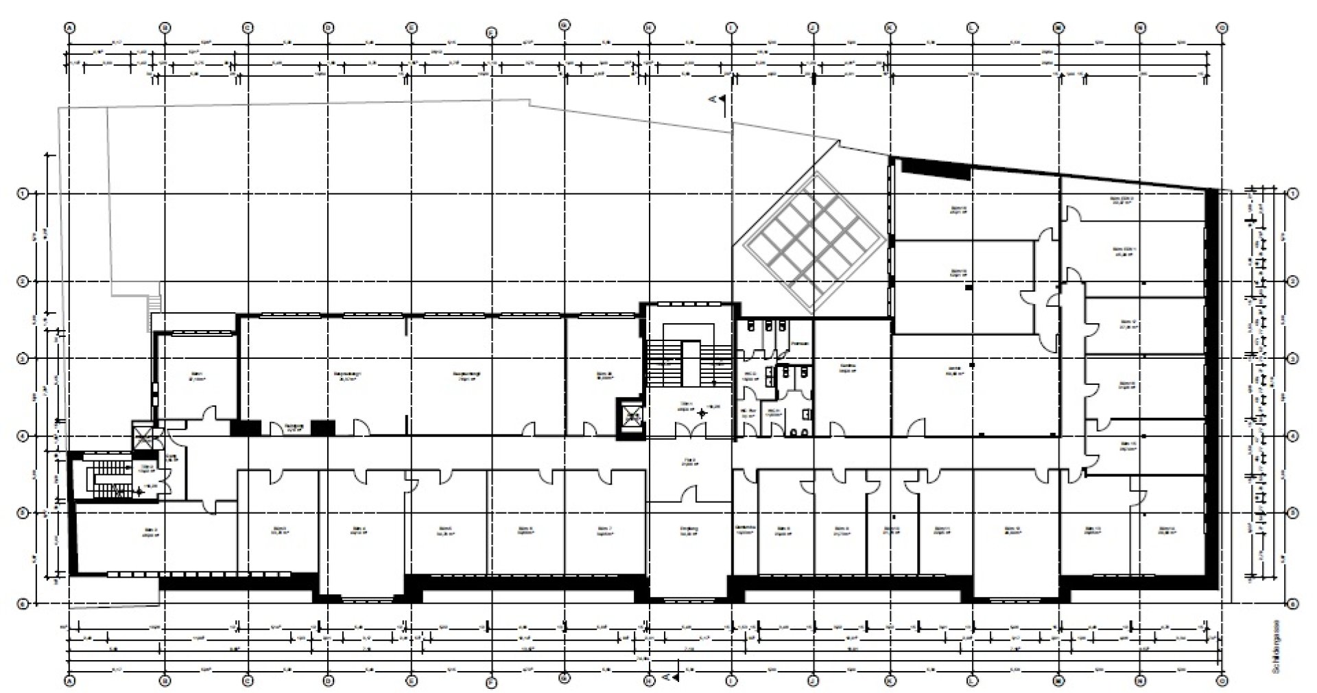
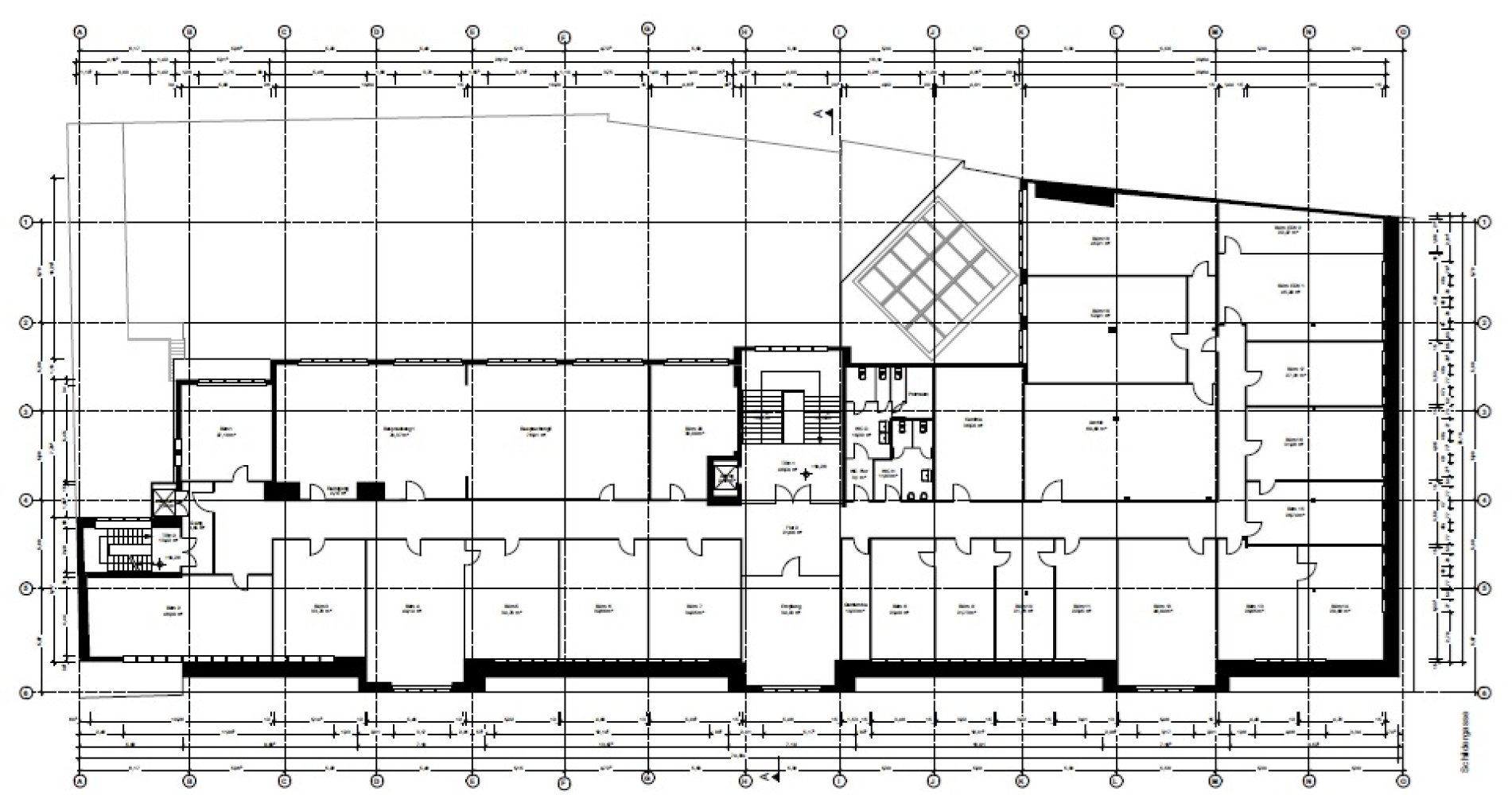
Objektbeschreibung
Das Büro und Geschäftshaus aus dem Jahr 1922 in 1A Citylage verfügt über eine attraktive Natursteinfassade und einen repräsentativen Eingangsbereich. Die Büroflächen wurden hochwertig renoviert und an den heutigen Bürostandard angepasst. Aufgrund der offenen Raumstruktur eignet sich diese Fläche ideal für kreative Unternehmen. Stellplätze können im gegenüberliegenden Parkhaus angemietet werden.
Über den offenen und einladenden Eingangsbereich gelangt man zu dem Treppenhaus und dem Personenaufzug. Die vakanten Einheiten im 3./4. und 5. OG wurde vor ein paar Jahren umfangreich saniert und entspricht somit allen Anforderungen des modernen Arbeitens (Klimatisierung, LED-Beleuchtung, großzügiger Sozialbereich für das Team, schnelle Internetleitungen).
Lage
- Stadtteil: Altstadt-Süd
- Nahversorgung: Restaurants, Bars, Lebensmittelmarkt, Geschäfte des täglichen Bedarfs
- Fußweg öffentl. Verkehr: 2 min.
- Fahrzeit Autobahn: 7 min.
- Fahrzeit Hauptbahnhof: 5 min.
- Fahrzeit Flughafen: 25 min.
- Straßenbahn: Linien 1, 7, 9, Haltestelle Neumarkt
- Bus: Linien 136, 146 Haltestelle Neumarkt
- Autobahn: A57 Richtung Düsseldorf Anbindung an A1 (Kreuz Köln Nord); A559 Richtung Bonn
Ausstattung
Sonstiges
Der Mietpreis liegt zwischen 17,00 EUR/ m² und 26,00 EUR/ m² und richtet sich nach Lage, Größe und Ausstattung der Mietfläche im Objekt.
Sie haben noch nicht das richtige gefunden? Sprechen Sie uns an und lassen Sie uns die Arbeit machen. Gemeinsam finden wir Ihre Wunschimmobilie und beraten Sie gerne bei Ihrer Anmietung.
Der guten Ordnung halber, möchten wir Sie darauf aufmerksam machen, dass im Falle eines Vertragsabschlusses, bei nicht als provisionsfrei gekennzeichneten Objekten eine laufzeitabhängige Provision zzgl. gesetzlicher Umsatzsteuer gemäß unserer Allgemeinen Geschäftsbedingungen für Sie als Auftraggeber fällig wird. Die Höhe der Provision können Sie unter www.dgi-koeln.de einsehen.
Kontaktanfrage
Dederichs & Göttlicher Immobilien GmbH