Zusätzlich zu den Büroflächen verfügt die Immobilie über weitere Annehmlichkeiten wie Aufzüge, sanitäre Einrichtungen und Gemeinschaftsräume. Die Lage des Gebäudes ist zentral und gut erreichbar. In der Nähe befinden sich verschiedene Einkaufsmöglichkeiten und Restaurants, die eine angenehme Arbeitsatmosphäre schaffen. Die Bürofläche bietet somit eine ideale Arbeitsumgebung für Unternehmen, die auf der Suche nach einem modernen und gut ausgestatteten Büro sind.
Schicke Büros !!! Mieten Sie Büroflächen in Ossendorf
Objekt melden
15 € (m²)
Mietpreis pro m²4.373 m²
Bürofläche1.058 m²
teilbar abnach Vereinbarung
Verfügbar abAdresse
50825 Köln
Download
Preise & Kosten
Angaben zur Immobilie
Objektbeschreibung
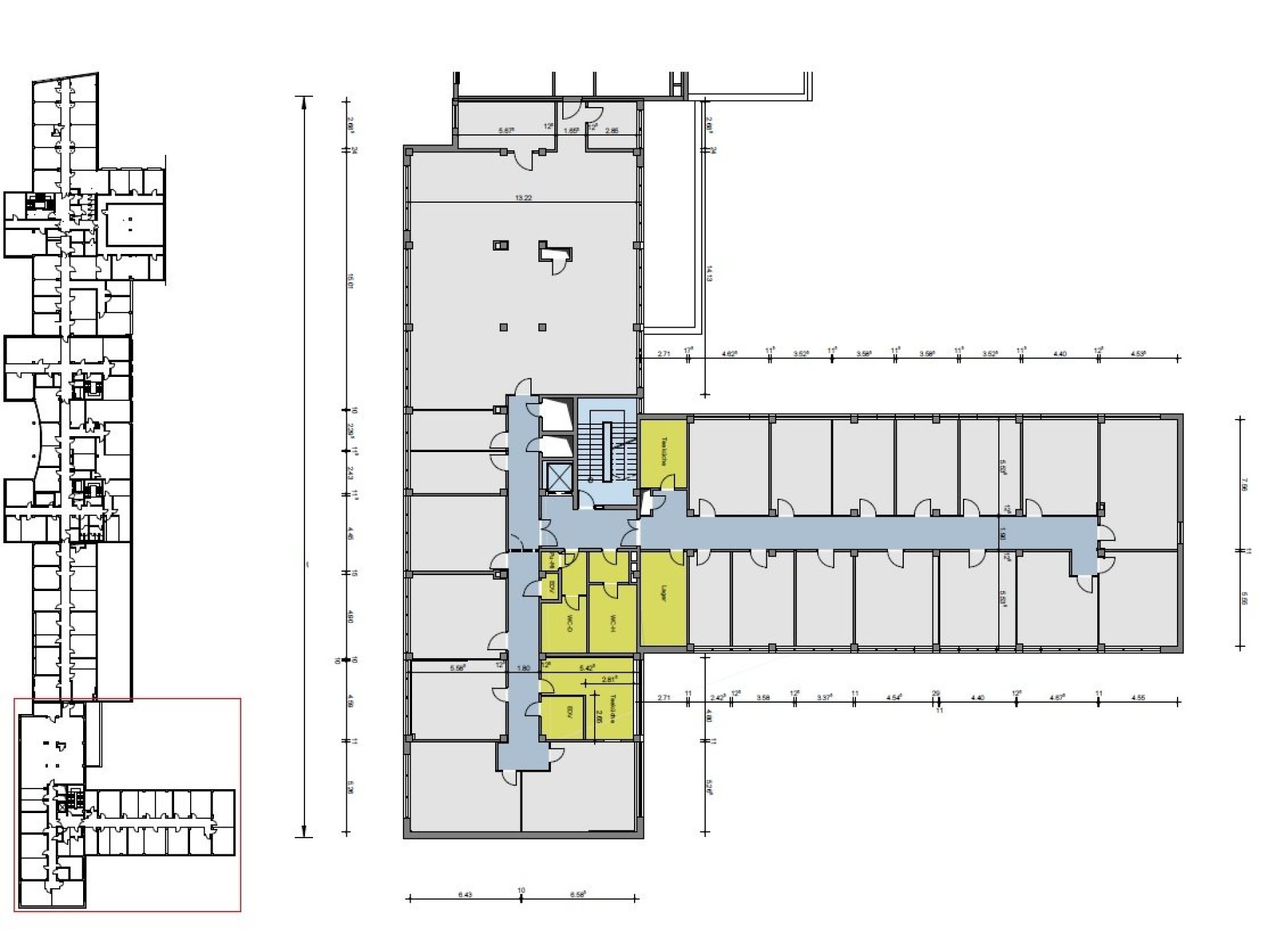
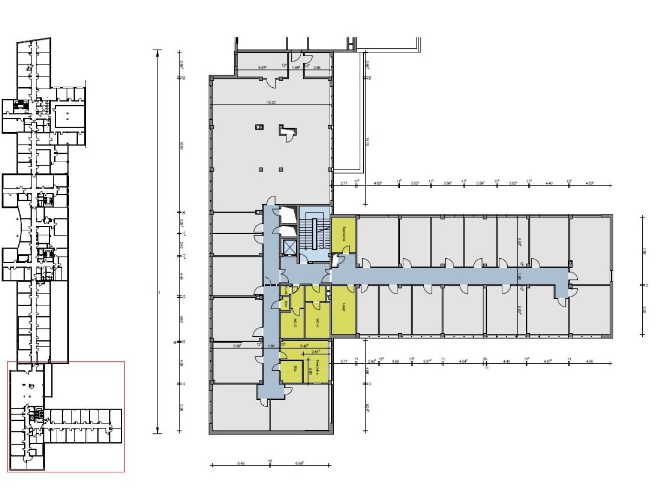
Die angebotene Immobilie ist eine Bürofläche, die im Jahr 1999 erbaut wurde. Das Gebäude verfügt über insgesamt 367 Parkplätze und ist barrierefrei zugänglich. Die Heizung erfolgt über eine Zentralheizung, was für angenehme Temperaturen in den Räumlichkeiten sorgt. Die vakanten Mietflächen befinden sich auf den Etagen 3 und 4 und der Übergabezustand ist nach Vereinbarung.
Die Räumlichkeiten der Bürofläche bieten viel Platz für verschiedene Nutzungsmöglichkeiten. Große Fenster sorgen für eine helle und freundliche Arbeitsumgebung. Die Bürofläche ist gut aufgeteilt und bietet verschiedene Räume, die individuell genutzt werden können. Durch die barrierefreie Gestaltung sind die Räumlichkeiten für alle Mitarbeiter leicht zugänglich.
Energieausweis
Lage
- Stadtteil: Ossendorf
- Nahversorgung: Kantine, Bistros, Lebensmittelmarkt, Bäckerei
- Fußweg öffentl. Verkehr: 4 min.
- Fahrzeit Autobahn: 3 min.
- Fahrzeit Hauptbahnhof: 20 min.
- Fahrzeit Flughafen: 30 min.
- Straßenbahn: Linie 5 Haltestelle Sparkasse Am Butzweilerhof
- Bus: Linie 139 Haltestelle Sparkasse Am Butzweilerhof
- Autobahn: A57 Richtung Düsseldorf, Anbindung an A1 (Kreuz Köln Nord) Richtung Koblenz und Dortmund
Ausstattung
Sonstiges
Sie haben noch nicht das richtige gefunden? Sprechen Sie uns an und lassen Sie uns die Arbeit machen. Gemeinsam finden wir Ihre Wunschimmobilie und beraten Sie gerne bei Ihrer Anmietung.
Der guten Ordnung halber, möchten wir Sie darauf aufmerksam machen, dass im Falle eines Vertragsabschlusses, bei nicht als provisionsfrei gekennzeichneten Objekten eine laufzeitabhängige Provision zzgl. gesetzlicher Umsatzsteuer gemäß unserer Allgemeinen Geschäftsbedingungen für Sie als Auftraggeber fällig wird. Die Höhe der Provision können Sie unter www.dgi-koeln.de einsehen.
Kontaktanfrage
Dederichs & Göttlicher Immobilien GmbH