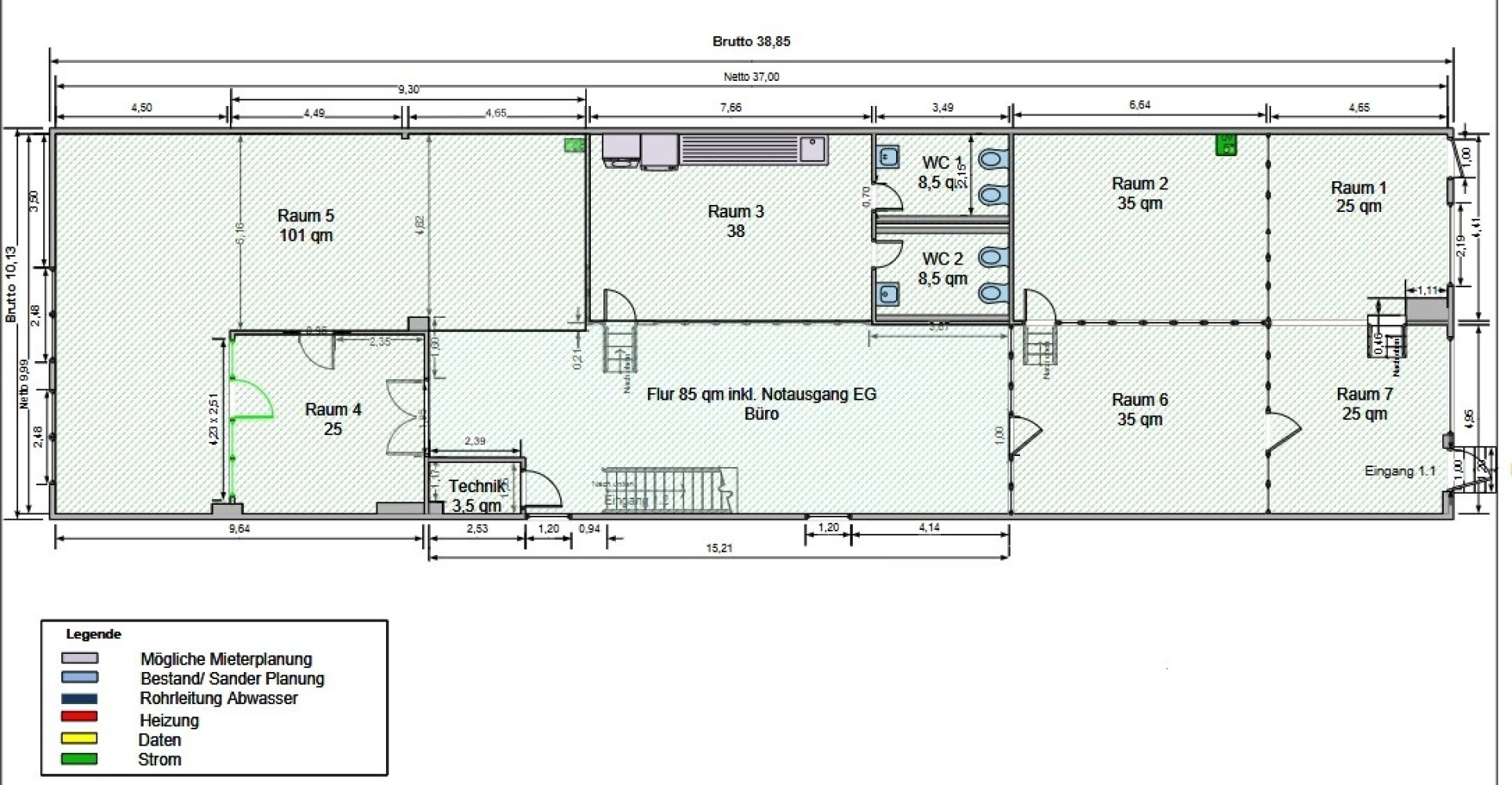
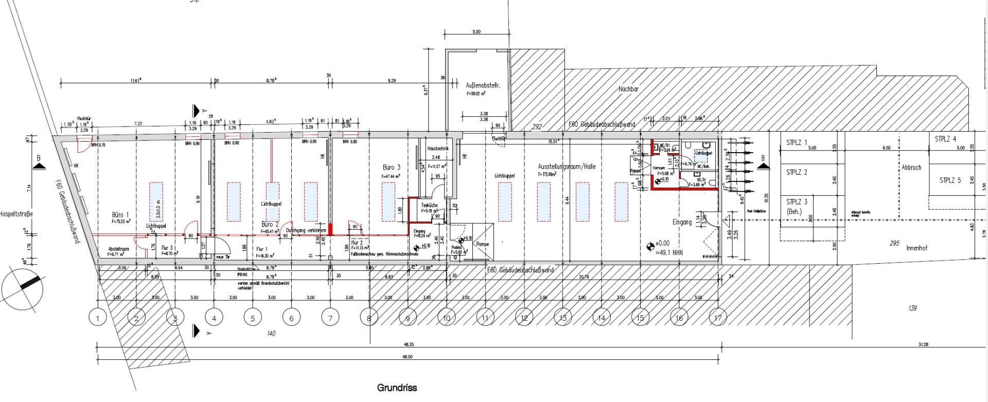
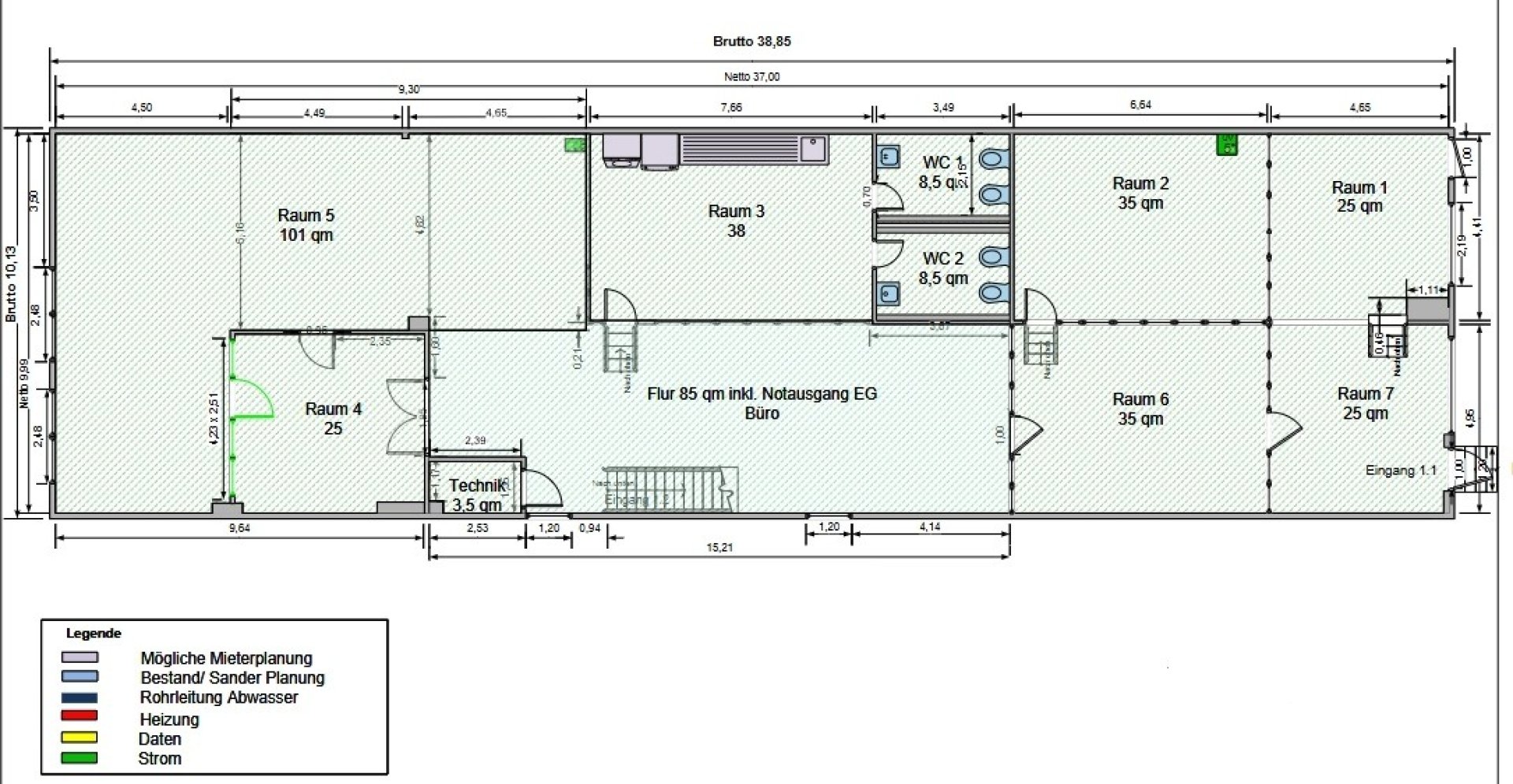
Diese ca. 400 m² große Gewerbefläche befindet sich in einer ehemaligen Druckerei und überzeugt durch ihren offenen, industriellen Charakter. Zuletzt wurde die Fläche von einer Agentur genutzt, die das Raumkonzept bereits in vielfältiger Weise bespielt hat. Die großzügige Open-Space-Struktur bietet zahlreiche Möglichkeiten zur individuellen Arbeitsplatzgestaltung – von klassischen Desk-Zonen über kreative Teamarbeitsplätze bis hin zu kommunikativen Lounge-Bereichen.
Ergänzt wird das Raumangebot durch kleinere, bereits abgetrennte Teilbereiche, die sich ideal als Rückzugsräume, für Meetings oder konzentriertes Arbeiten eignen. Alternativ wäre auch eine Neuaufteilung der Fläche denkbar – die baulichen Gegebenheiten lassen hier Spielraum für verschiedene Konzepte.
Eine mögliche Neuaufteilung kann gerne gemeinsam besprochen und flexibel umgesetzt werden.
Ein besonderes Highlight ist der offen gestaltete, großzügige Küchenbereich, der direkt an den OpenSpace angrenzt. Dieser lädt Teams dazu ein, die Mittagspause gemeinsam zu verbringen oder in lockerer Atmosphäre zusammen zu kochen. Die großen Fenster mit Blick in den ruhigen Innenhof und den begrünten Garten sorgen für eine angenehme Arbeitsatmosphäre mit viel Tageslicht.
Die Kombination aus industrieller Substanz, flexibler Nutzbarkeit und großzügigem Gemeinschaftsbereich macht diese Fläche ideal für moderne Arbeitsformen, kreative Teams und Unternehmen, die Wert auf Austausch und Wohlfühlklima legen.
Zusätzlich zu den Büroflächen stehen den Mietern 2 Parkplätze zur Verfügung. Die Lage der Immobilie bietet eine gute Anbindung an öffentliche Verkehrsmittel und die Autobahn. In der näheren Umgebung befinden sich Einkaufsmöglichkeiten und Restaurants für eine abwechslungsreiche Mittagspause. Der flexible Zustand des Gebäudes bietet den Mietern die Möglichkeit, die Bürofläche nach ihren individuellen Vorstellungen anzupassen.
Lage
- Stadtteil: Ehrenfeld
- Nahversorgung: Bistros, Imbiß, Restaurant
- Fußweg öffentl. Verkehr: 3 min.
- Fahrzeit Autobahn: 10 min.
- Fahrzeit Hauptbahnhof: 12 min.
- Fahrzeit Flughafen: 30 min.
- Straßenbahn: Linie 3,4 Haltestelle Leyendecker Straße
- Autobahn: A1 (Kreuz Köln/ West)
Sonstiges
Sie haben noch nicht das richtige gefunden? Sprechen Sie uns an und lassen Sie uns die Arbeit machen. Gemeinsam finden wir Ihre Wunschimmobilie und beraten Sie gerne bei Ihrer Anmietung.
Der guten Ordnung halber, möchten wir Sie darauf aufmerksam machen, dass im Falle eines Vertragsabschlusses, bei nicht als provisionsfrei gekennzeichneten Objekten eine Provision zzgl. gesetzlicher Umsatzsteuer gemäß unserer Allgemeinen Geschäftsbedingungen für Sie als Auftraggeber fällig wird. Die Höhe der Provision können Sie unter www.dgi-koeln.de einsehen.
Wir möchten Sie darüber informieren, dass seit dem 01. Mai 2014 die zweite Verordnung zur Änderung der Energieeinsparverordnung ihre Gültigkeit erlangt hat. Nach den Paragraphen 16 und 16a EnEV sind die Vermieter/Verkäufer bei der Vermarktung von Immobilien dazu verpflichtet, den Energieausweis der Immobilie auszuhändigen und die energetischen Kennwerte mit in die Inserate aufzunehmen. Bei all unseren inserierten Immobilien haben wir die Vermieter/ Verkäufer nachweislich darauf aufmerksam gemacht und die erforderlichen Energieausweise angefordert.