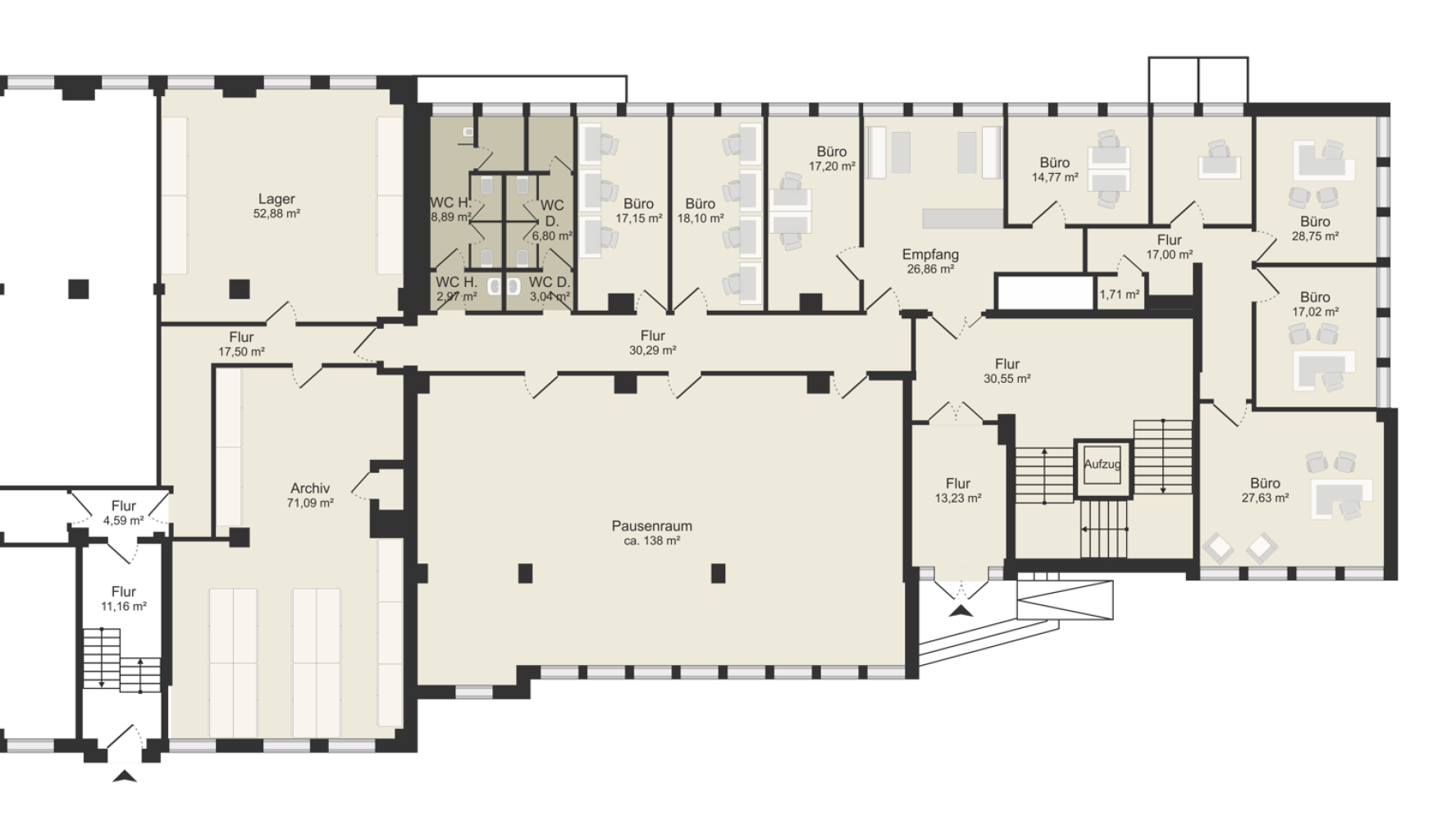
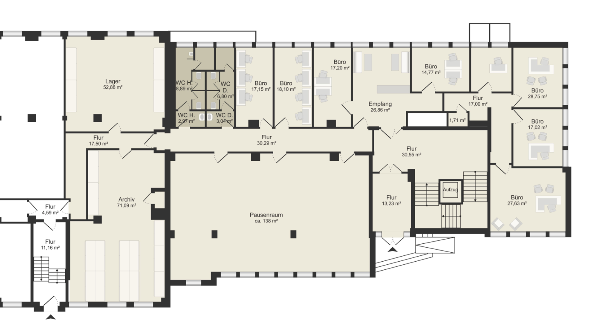
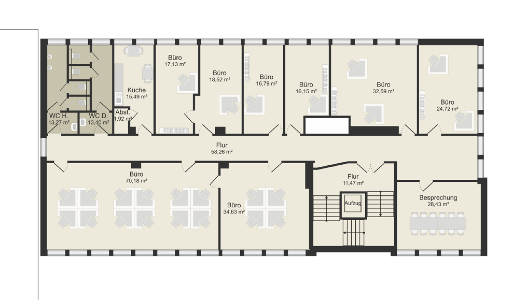
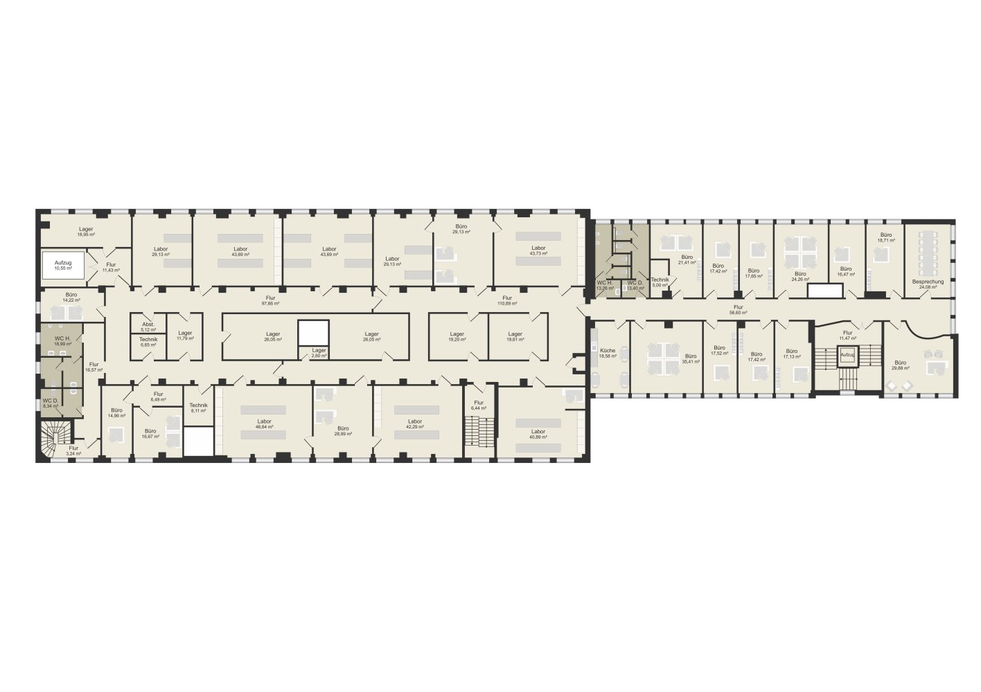
Dieses gepflegte und unter Denkmalschutz stehende Bürohaus aus dem Jahr 1972 wurde kontinuierlich modernisiert und bietet vielseitige Mietflächen für Büro-, Labor- und Lagerzwecke. Die hellen, großzügig geschnittenen Räumlichkeiten ermöglichen eine flexible Nutzung und bieten ausreichend Platz für verschiedene Arbeitsbereiche. Große Fenster sorgen für eine angenehme Belichtung und eine freundliche Arbeitsatmosphäre.
Die Ausstattung entspricht modernen Standards und erfüllt die Anforderungen zeitgemäßer Arbeitsbedingungen. Neben den Büro- und Laborflächen stehen zudem Lagerflächen zur Verfügung, die eine optimale Ergänzung für Unternehmen mit zusätzlichem Platzbedarf darstellen. Im hinteren Bereich befindet sich zudem eine Andienungsstelle, von wo der vorhandene Lastenaufzug genutzt werden könnte.
Die Immobilie überzeugt durch ihre zentrale und gut erreichbare Lage. In unmittelbarer Nähe befinden sich zahlreiche Geschäfte, Restaurants sowie öffentliche Verkehrsmittel, die eine hervorragende Infrastruktur gewährleisten.
Diese Mietflächen sind ideal für Unternehmen, die eine moderne, gut angebundene Arbeitsumgebung suchen.
Lage
- Stadtteil: Braunsfeld
- Nahversorgung: Imbiß, Bistros, Gastronomie, Fitness, Hotel
- Fußweg öffentl. Verkehr: 9 min.
- Fahrzeit Autobahn: 8 min.
- Fahrzeit Hauptbahnhof: 15 min.
- Fahrzeit Flughafen: 30 min.
- Straßenbahn: Linie 13 Haltestelle Oskar-Jäger-Straße/ Gürtel
- Bus: 140 Haltestelle Stolberger Straße
- Autobahn: A1 Richtung Koblenz und Dortmund, A4 Richtung Aachen
Sonstiges
Sie haben noch nicht das richtige gefunden? Sprechen Sie uns an und lassen Sie uns die Arbeit machen. Gemeinsam finden wir Ihre Wunschimmobilie und beraten Sie gerne bei Ihrer Anmietung.
Der guten Ordnung halber, möchten wir Sie darauf aufmerksam machen, dass im Falle eines Vertragsabschlusses, bei nicht als provisionsfrei gekennzeichneten Objekten, eine Provision zzgl. gesetzlicher Umsatzsteuer gemäß unserer Allgemeinen Geschäftsbedingungen für Sie als Auftraggeber fällig wird. Die Höhe der Provision können Sie unter www.dgi-koeln.de einsehen.