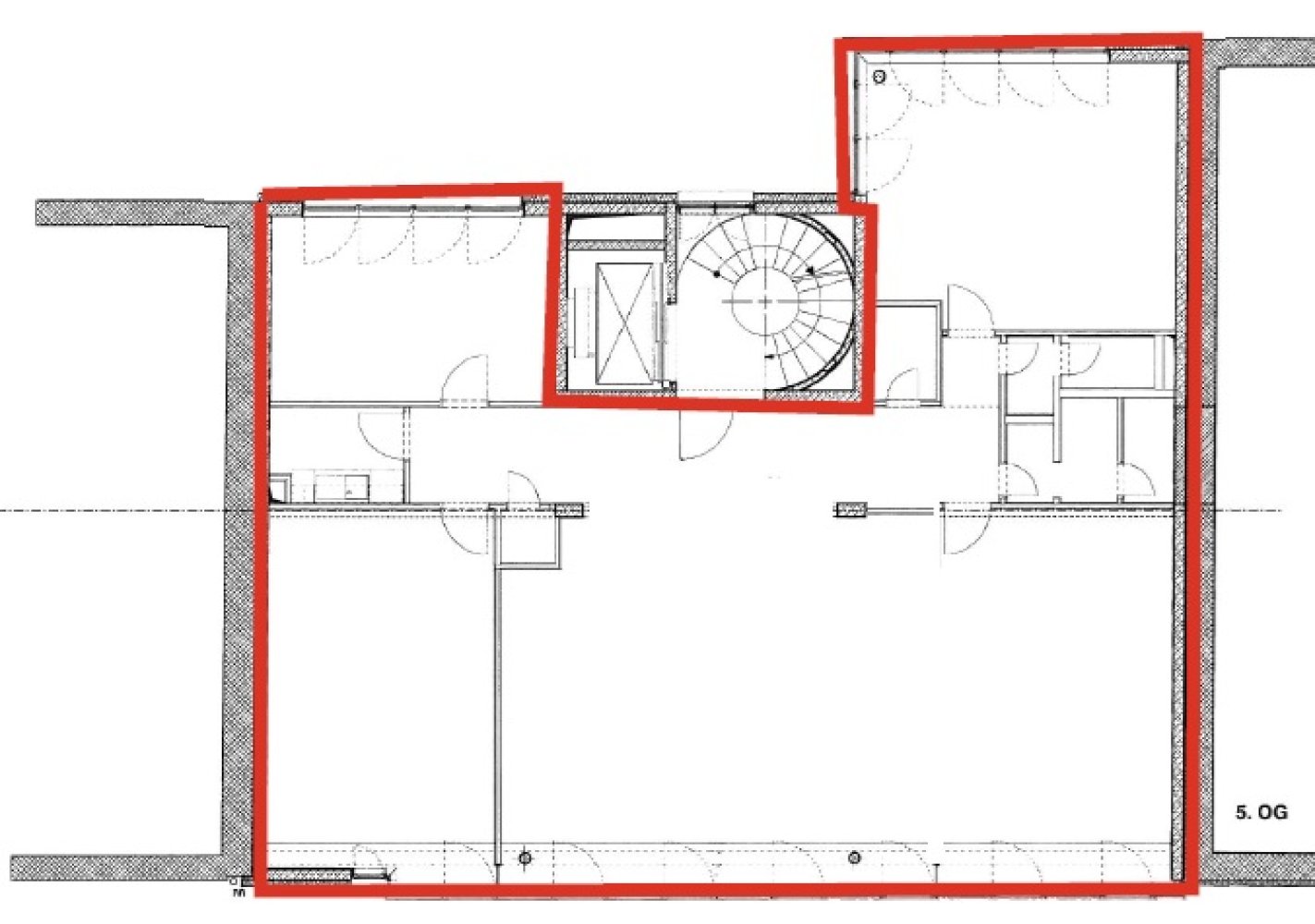
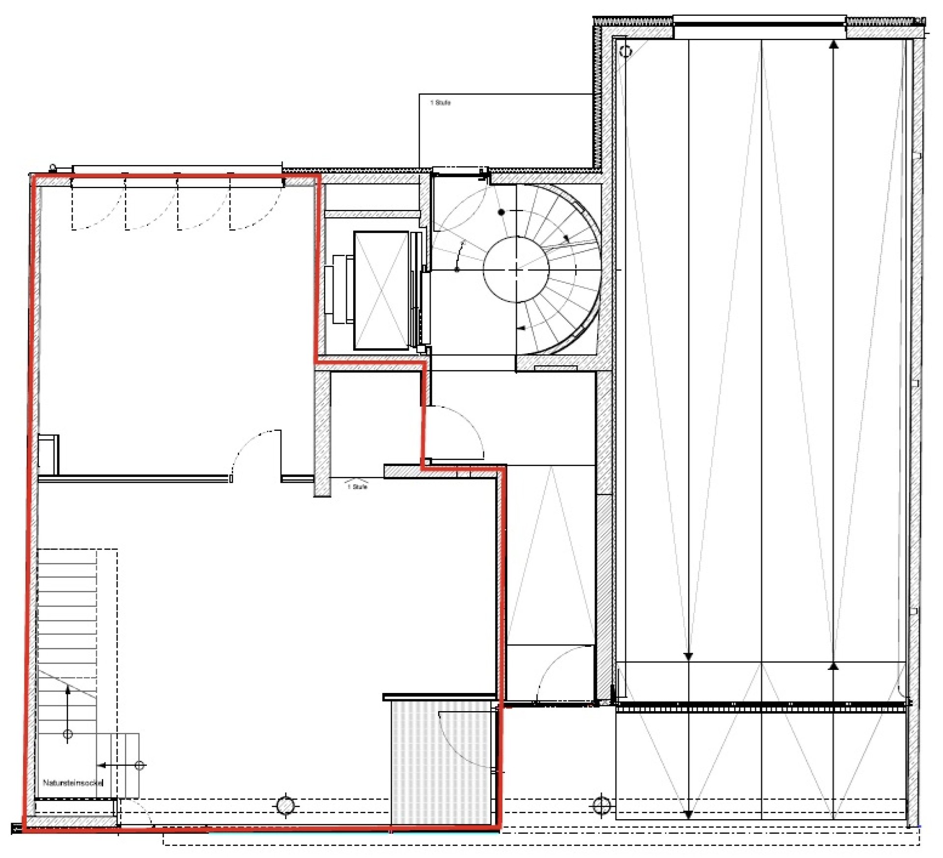
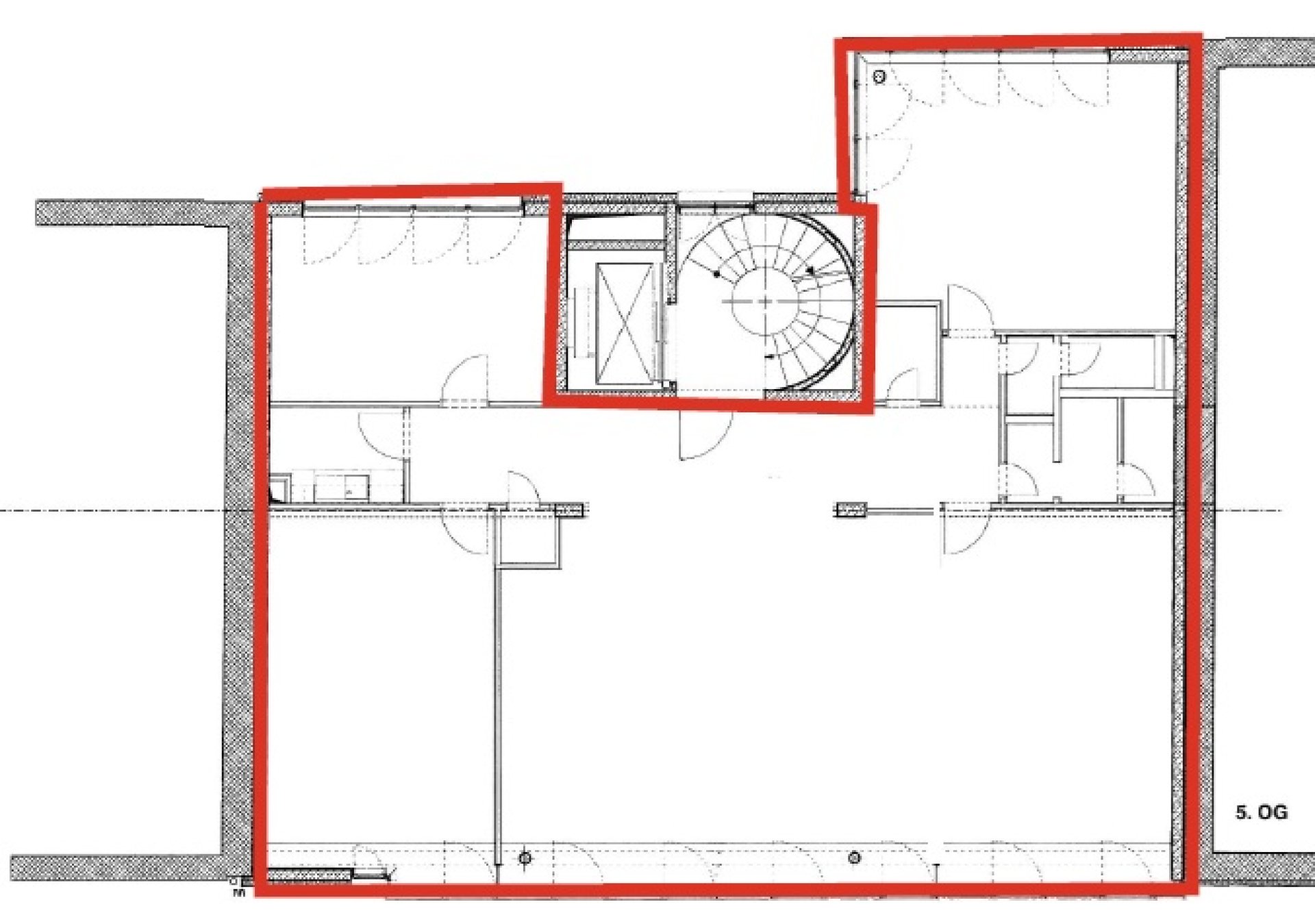
Diese Bürofläche befindet sich in einem denkmalgeschützten Gebäude, welches im Jahr 2000 mit insgesamt 6 Etagen aufwändig saniert wurde. Die Immobilie ist barrierefrei zugänglich und verfügt über eine Zentralheizung. Der Gebäudezustand ist als neuwertig zu bezeichnen und die Büroflächen befinden sich in der vierten und sechsten Etage des Gebäudes.
Die Räumlichkeiten dieser Bürofläche bieten großzügige und helle Arbeitsbereiche, die sich ideal für verschiedene Geschäftszwecke eignen. Dank der zentralen Lage auf den oberen Etagen des Gebäudes genießen Sie hier eine angenehme Aussicht und können in einer ruhigen Atmosphäre effizient arbeiten. Die Bürofläche ist optimal geschnitten und kann an Ihre individuellen Bedürfnisse angepasst werden.
Die Mietflächen sind mit einem hochwertigen Parkettboden, hohen Decken und Designerleuchten ausgestattet.
Zusätzlich verfügt die Immobilie über moderne sanitäre Anlagen, ausreichend Stellplätze für Mitarbeiter und Kunden sowie eine gute Anbindung an öffentliche Verkehrsmittel. Die Bürofläche eignet sich hervorragend für Unternehmen, die eine repräsentative und gut erreichbare Arbeitsumgebung suchen. Nutzen Sie diese Gelegenheit, um Ihre Geschäftsräume in einem geschichtsträchtigen Gebäude mit zeitgemäßem Komfort zu etablieren.
Lage
- Stadtteil: Belgisches Viertel
- Nahversorgung: Restaurants, Bistros, Geschäfte des täglichen Bedarfs
- Fußweg öffentl. Verkehr: 3 min.
- Fahrzeit Autobahn: 3 min.
- Fahrzeit Hauptbahnhof: 5 min.
- Fahrzeit Flughafen: 20 min.
- Straßenbahn: L12,15 Haltestelle Christophstraße/ Mediapark
- Autobahn: A57 Richtung Düsseldorf, Anbindung an A1 (Kreuz Köln Nord)
Sonstiges
Sie haben noch nicht das richtige gefunden? Sprechen Sie uns an und lassen Sie uns die Arbeit machen. Gemeinsam finden wir Ihre Wunschimmobilie und beraten Sie gerne bei Ihrer Anmietung.
Der guten Ordnung halber, möchten wir Sie darauf aufmerksam machen, dass im Falle eines Vertragsabschlusses, bei nicht als provisionsfrei gekennzeichneten Objekten eine laufzeitabhängige Provision zzgl. gesetzlicher Umsatzsteuer gemäß unserer Allgemeinen Geschäftsbedingungen für Sie als Auftraggeber fällig wird. Die Höhe der Provision können Sie unter www.dgi-koeln.de einsehen.