Identifikator: 6257#Njh8qJ

Ausgefallenes Büro in der Südstadt

Objekt melden

* Pflichtfelder

Objektbeschreibung

Das in der Kölner Südstadt gelegene Objekt überzeugt durch seine attraktive Lage im direkten Umfeld der beliebten Severinstraße. Die hervorragende Infrastruktur mit zahlreichen Gastronomie-, Einkaufs- und Dienstleistungsangeboten sowie die sehr gute Anbindung an den öffentlichen Nahverkehr machen den Standort besonders attraktiv. Auch der Rhein ist in wenigen Minuten fußläufig erreichbar und bietet zusätzliche Aufenthaltsqualität für Mitarbeiter und Besucher.

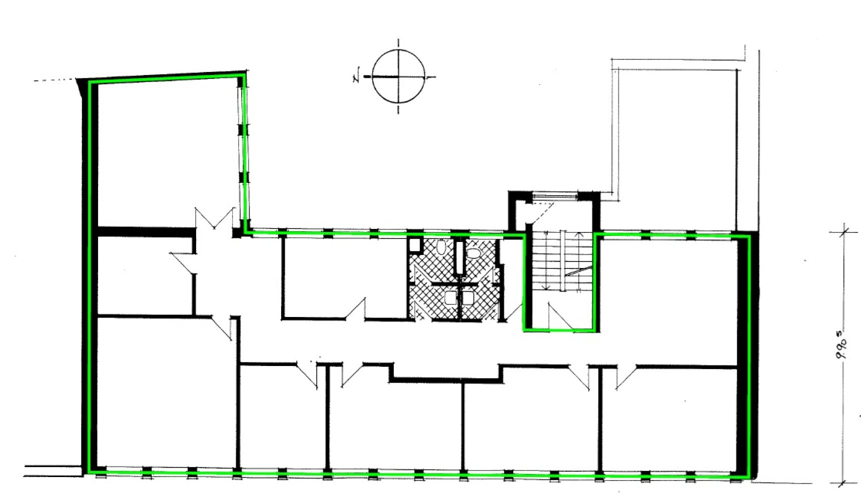
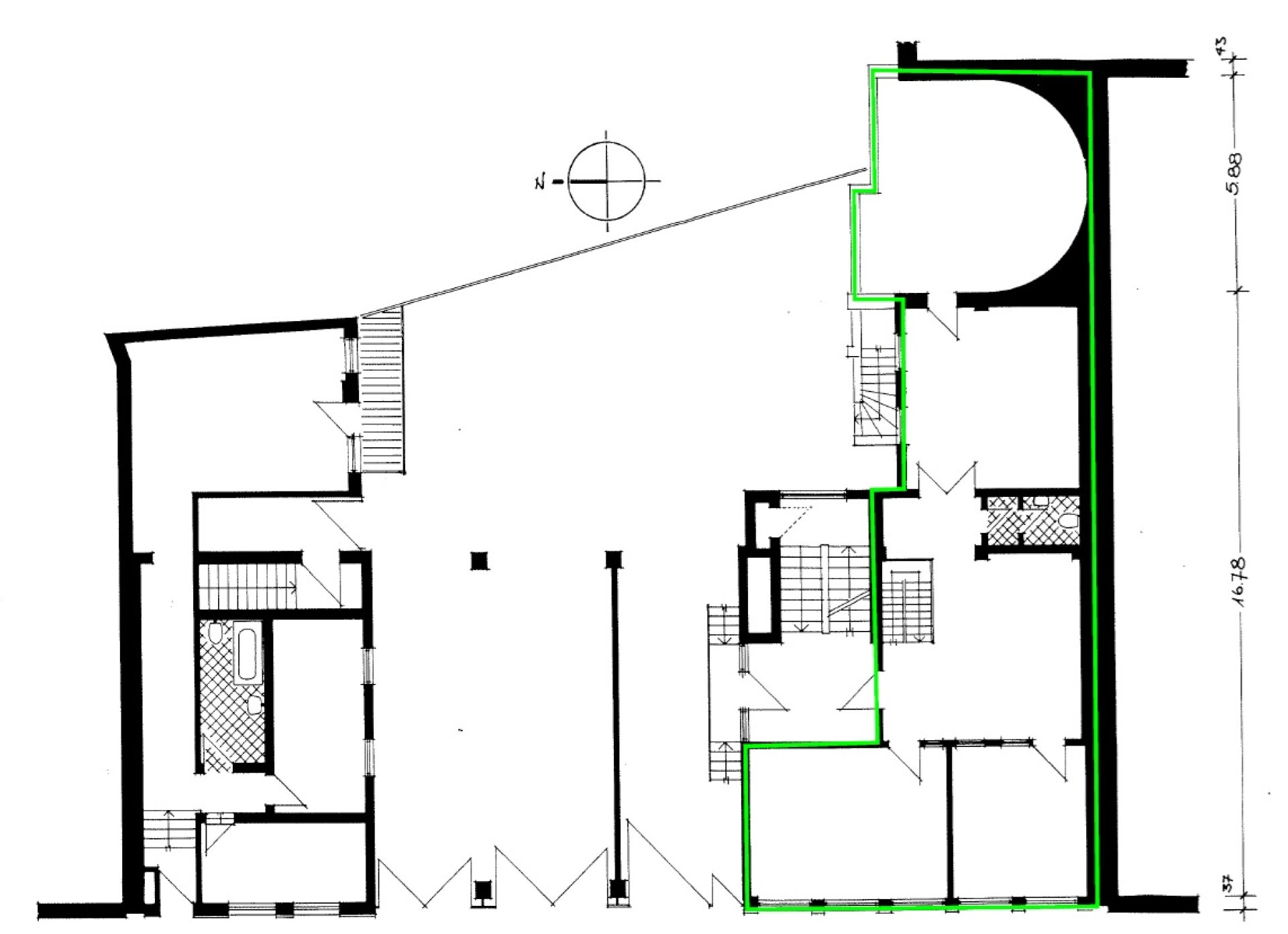
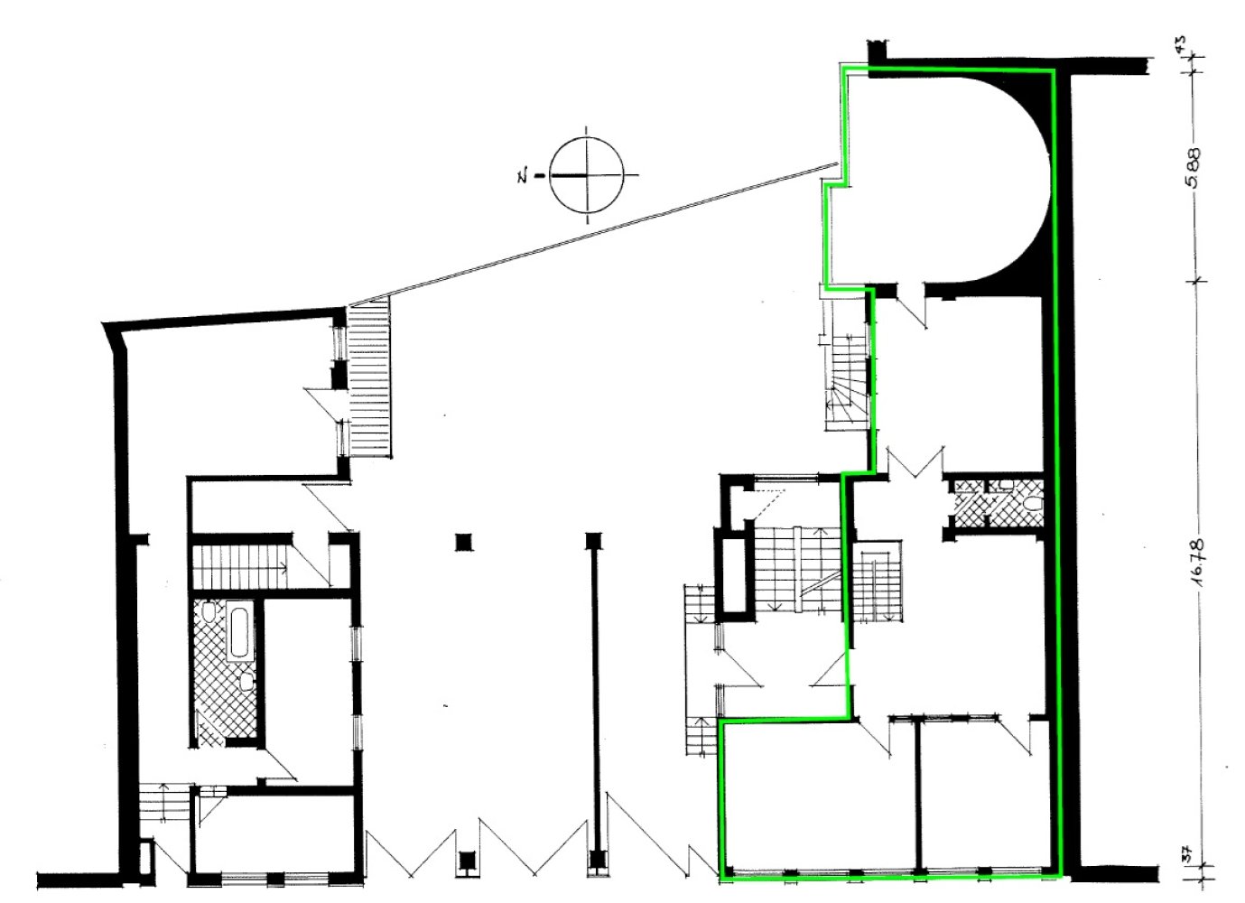
Das Gebäude wurde im Jahr 2001 umfassend renoviert und präsentiert sich in einem gepflegten Zustand. Aktuell steht im Erdgeschoss und 1.Obergschoss eine Bürofläche mit ca. 368 m² zur Verfügung, für die ein neuer Mieter gesucht wird. Die Fläche bietet eine angenehme Arbeitsatmosphäre und eignet sich sowohl für klassische Bürostrukturen als auch für moderne Arbeitskonzepte.

Zur Ausstattung gehören unter anderem Parkettboden, eine vorhandene EDV-Verkabelung sowie hochwertige Bürotüren mit Glaselementen, die den Räumen eine helle und hochwertige Anmutung verleihen. Ergänzend können Archivflächen im Untergeschoss angemietet werden.

Auf Wunsch besteht außerdem die Möglichkeit, PKW-Stellplätze anzumieten, die zusätzlichen Komfort für Mitarbeiter und Besucher bieten.

Energieverbrauchskennwert
141 kWh / (a·m²)
0
>250
Gebäudeart
Gewerbeimmobilie
Energieausweis
Verbrauch
Energieverbrauchskennwert
141
Primärenergieträger
Fernwärme
Stromverbrauchskennwert kWh/(·a)
30
Heizenergie­verbrauchs­kennwert kWh/(·a)
1.030

Sonstiges

Sie haben noch nicht das richtige gefunden? Sprechen Sie uns an und lassen Sie uns die Arbeit machen. Gemeinsam finden wir Ihre Wunschimmobilie und beraten Sie gerne bei Ihrer Anmietung.

Der guten Ordnung halber, möchten wir Sie darauf aufmerksam machen, dass im Falle eines Vertragsabschlusses, bei nicht als provisionsfrei gekennzeichneten Objekten eine Provision zzgl. gesetzlicher Umsatzsteuer gemäß unserer Allgemeinen Geschäftsbedingungen für Sie als Auftraggeber fällig wird. Die Höhe der Provision können Sie unter www.dgi-koeln.de einsehen.