Das sechsgeschossige Büro- und Geschäftshaus aus dem Jahr 1966 liegt in attraktiver Innenstadtlage auf der Breite Straße in Köln. Die Immobilie wurde kontinuierlich modernisiert und präsentiert sich heute mit einem repräsentativen Eingangsbereich sowie komfortablen Stellplätzen direkt am Objekt.
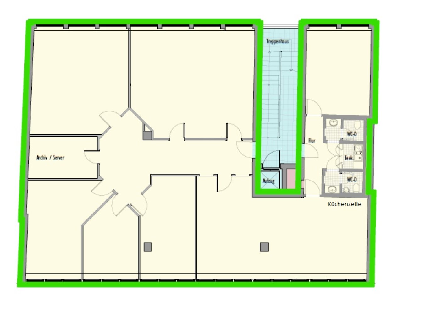
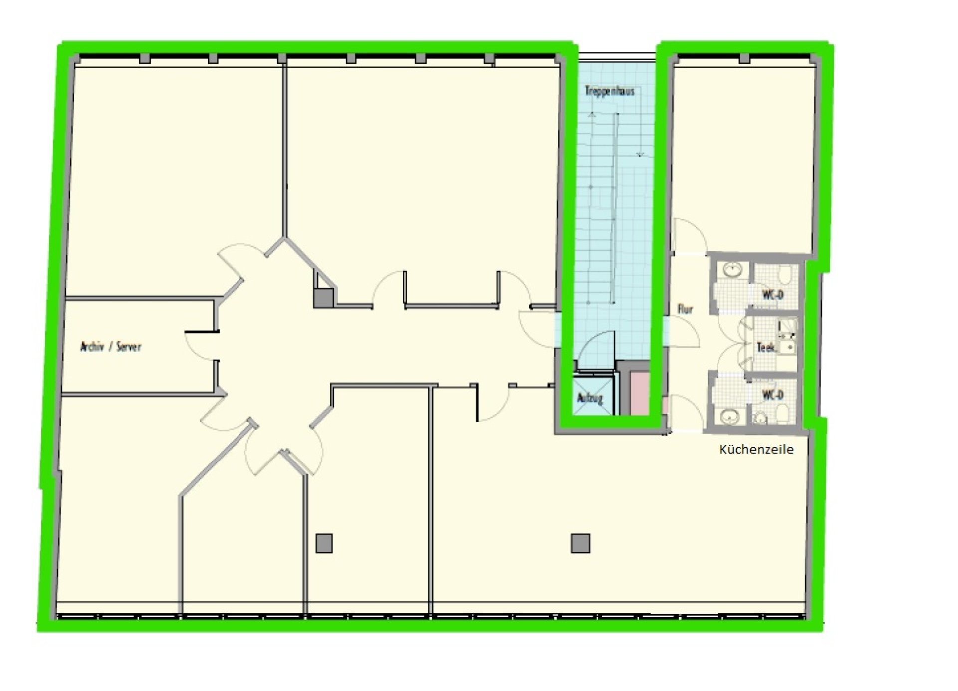
Die zur Vermietung stehende Bürofläche im 1. Obergeschoss überzeugt durch ihren großzügigen und effizienten Grundriss, der vielfältige Nutzungsmöglichkeiten für unterschiedliche Bürokonzepte bietet. Große Fensterflächen sorgen für eine helle, freundliche Arbeitsatmosphäre. Die Räume befinden sich in einem sehr gepflegten und hochwertigen Zustand.
Ein Personenaufzug gewährleistet einen barrierefreien Zugang zur Fläche.
Die zentrale Lage bietet eine hervorragende Anbindung an den öffentlichen Nahverkehr. Zahlreiche Einkaufsmöglichkeiten, Restaurants und Dienstleistungsangebote befinden sich in unmittelbarer Umgebung und schaffen ein lebendiges sowie komfortables Arbeitsumfeld. Durch die optimale Verkehrsanbindung und die vorhandenen Parkmöglichkeiten ist die Immobilie sowohl für Mitarbeiter als auch für Kunden bequem erreichbar.
Insgesamt bietet diese Bürofläche ideale Voraussetzungen für eine erfolgreiche und repräsentative Geschäftstätigkeit in bester Innenstadtlage.
Lage
- Stadtteil: Altstadt Nord
- Nahversorgung: Restaurants, Bistros, Geschäfte des
täglichen Bedarfs, Einkaufsstraße
- Fußweg öffentl. Verkehr: 2 min
- Fahrzeit Autobahn: 6 min
- Fahrzeit Hauptbahnhof: 4 min
- Fahrzeit Flughafen: 25 min
- Straßenbahn: Linie 3, 4, 16, 18 Haltestelle Appelhofplatz/Breite Straße
- Autobahn: A57 Richtung Düsseldorf Anbindung an A1 (Kreuz Köln Nord)
und die A559 Richtung Bonn mit Anbindung an A4 nach Olpe und Aachen
Ausstattung
Heizungsart
Zentralheizung
Befeuerung
Öl
Klimatisiert
Aufzug
Personenaufzug
Stellplatzart
Tiefgarage
Barrierefrei
DV-Verkabelung
Sonstiges
Sie haben noch nicht das richtige gefunden? Sprechen Sie uns an und lassen Sie uns die Arbeit machen. Gemeinsam finden wir Ihre Wunschimmobilie und beraten Sie gerne bei Ihrer Anmietung.
Der guten Ordnung halber, möchten wir Sie darauf aufmerksam machen, dass im Falle eines Vertragsabschlusses, bei nicht als provisionsfrei gekennzeichneten Objekten eine laufzeitabhängige Provision zzgl. gesetzlicher Umsatzsteuer gemäß unserer Allgemeinen Geschäftsbedingungen für Sie als Auftraggeber fällig wird. Die Höhe der Provision können Sie unter www.dgi-koeln.de einsehen.
Wir möchten Sie darüber informieren, dass seit dem 01. Mai 2014 die zweite Verordnung zur Änderung der Energieeinsparverordnung ihre Gültigkeit erlangt hat.
Nach den Paragraphen 16 und 16a EnEV sind die Vermieter/Verkäufer bei der Vermarktung von Immobilien dazu verpflichtet, den Energieausweis der Immobilie auszuhändigen und die energetischen Kennwerte mit in die Inserate aufzunehmen. Bei all unseren inserierten Immobilien haben wir nachweislich darauf aufmerksam gemacht. Sollten die erforderlichen Kennzahlen nicht angegeben sein, liegt uns noch kein Energieausweise vor.