Absolute *SELTENHEIT* Loftbüros in Köln-Ehrenfeld
Objekt melden
11 € (m²)
Mietpreis pro m²730 m²
Büroflächekurzfristig bzw. nach Vereinbarung
Verfügbar abAdresse
50933 Köln
Download
Preise & Kosten
Angaben zur Immobilie
Objektbeschreibung
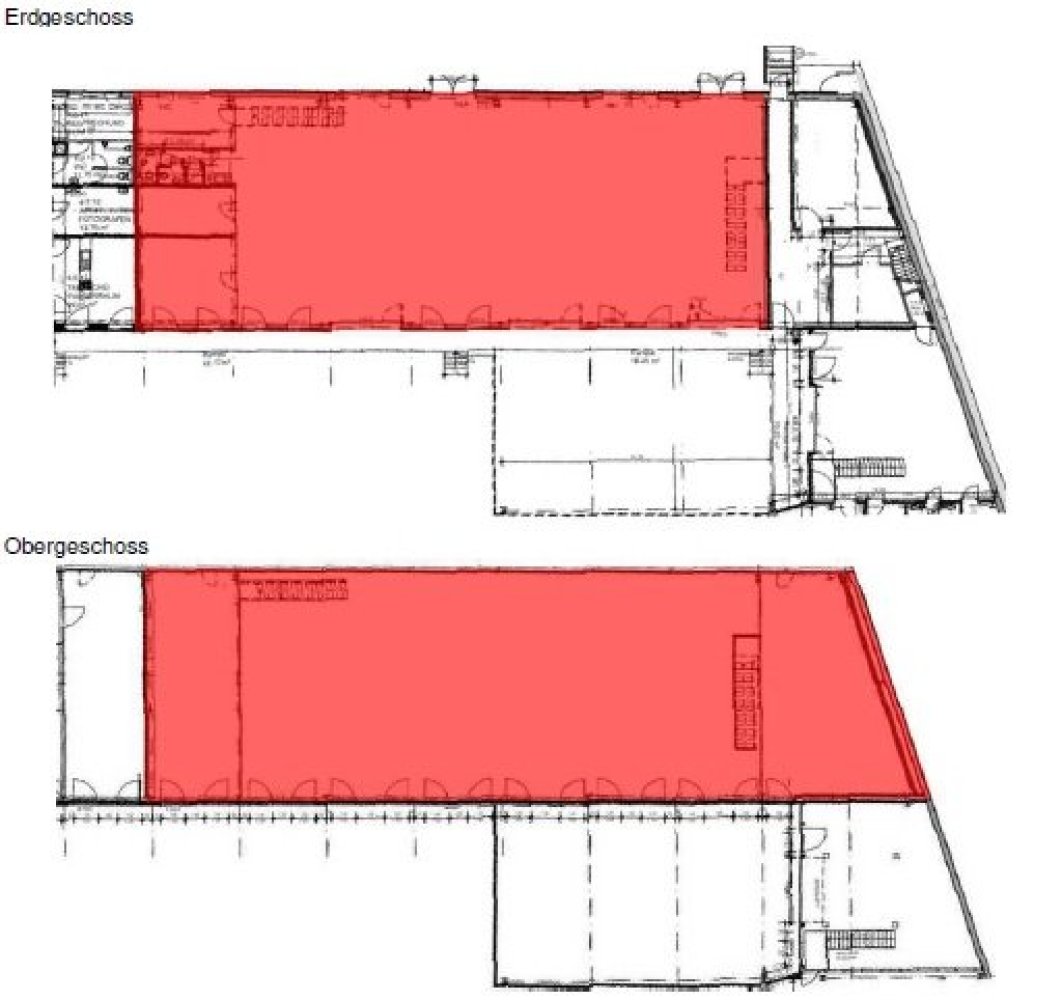
Die Lagerhalle mit Backsteinwänden wurde entkernt und als modernes Loftbüro bzw. als Showroom umgebaut. Das Loftbüro hat insgesamt 730 m² und verfügt über Großraumbereiche und eine große Terrasse. Die offene Raumstruktur und das loftige Ambiente ist ideal für kreative Unternehmen geeignet. Stellplätze sind im Innenhof anmietbar.
Die Umgebung der Immobilie bietet eine gute Infrastruktur und eine verkehrsgünstige Lage. In unmittelbarer Nähe befinden sich diverse Einkaufsmöglichkeiten, Restaurants und öffentliche Verkehrsanbindungen. Die Bürofläche eignet sich ideal für Unternehmen, die eine repräsentative und gut erreichbare Arbeitsstätte suchen. Insgesamt bietet diese Immobilie alle Voraussetzungen für eine erfolgreiche und angenehme Büronutzung.
Energieausweis
Lage
- Stadtteil: Braunsfeld
- Nahversorgung: Imbiß, Bistros
- Fußweg öffentl. Verkehr: 8 min.
- Fahrzeit Autobahn: 8 min.
- Fahrzeit Hauptbahnhof: 10 min.
- Fahrzeit Flughafen: 25 min.
- Straßenbahn: Linie 13 Haltestelle Oskar-Jäger-Straße/ Gürtel
- Bus: 140 Haltestelle Stolberger Straße
- Autobahn: A1 Richtung Koblenz und Dortmund, A4 Richtung Aachen
Ausstattung
Sonstiges
Sie haben noch nicht das richtige gefunden? Sprechen Sie uns an und lassen Sie uns die Arbeit machen. Gemeinsam finden wir Ihre Wunschimmobilie und beraten Sie gerne bei Ihrer Anmietung.
Der guten Ordnung halber, möchten wir Sie darauf aufmerksam machen, dass im Falle eines Vertragsabschlusses, bei nicht als provisionsfrei gekennzeichneten Objekten eine laufzeitabhängige Provision zzgl. gesetzlicher Umsatzsteuer gemäß unserer Allgemeinen Geschäftsbedingungen für Sie als Auftraggeber fällig wird. Die Höhe der Provision können Sie unter www.dgi-koeln.de einsehen.
Kontaktanfrage
Dederichs & Göttlicher Immobilien GmbH