Diese hochwertige Bürofläche befindet sich im exklusiven Gerling Quartier – Lambertina Höfe, einem der renommiertesten innerstädtischen Areale Kölns. Das Gebäudeensemble vereint den Charme denkmalgeschützter Architektur mit modernster Ausstattung und bietet ein repräsentatives Arbeitsumfeld für anspruchsvolle Unternehmen.
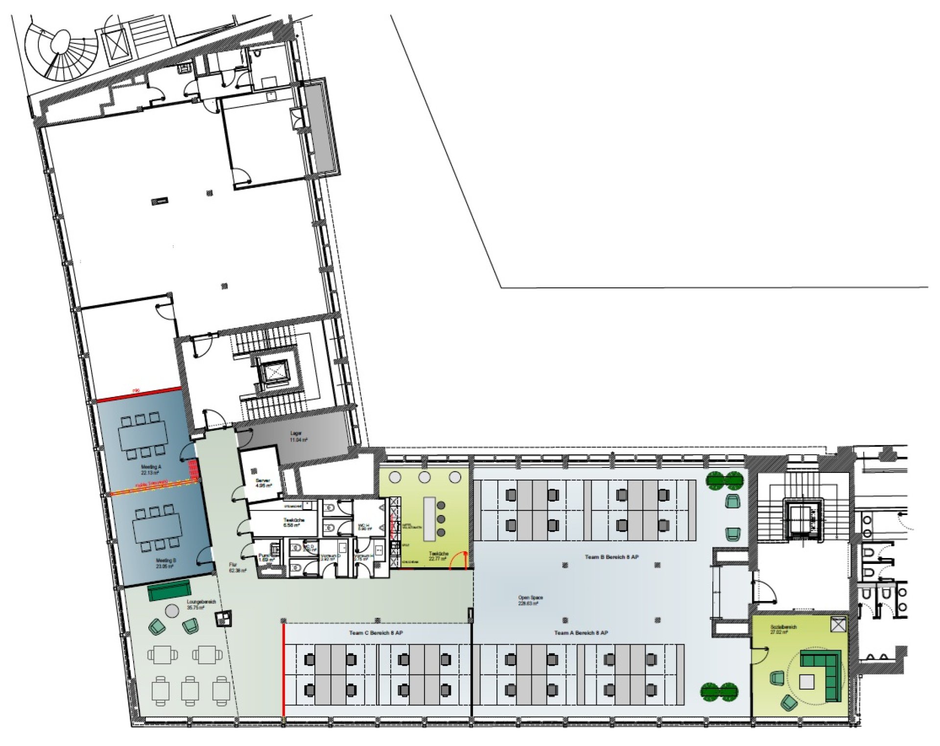
Die verfügbare Einheit erstreckt sich über großzügig geschnittene Büroflächen mit flexiblen Grundrissen, die sich individuell an moderne Arbeitskonzepte anpassen lassen. Hohe Decken, großformatige Fenster und eine klare Linienführung sorgen für eine lichtdurchflutete, einladende Arbeitsatmosphäre. Moderne Gebäudetechnik, eine effiziente Raumaufteilung sowie die hochwertige Ausstattung unterstreichen den exklusiven Charakter dieser Immobilie.
Neben den Büroflächen stehen zudem Nebenflächen und Lageroptionen zur Verfügung, die den Nutzungskomfort erhöhen.
Die Lage im Herzen von Köln ist einzigartig: In direkter Nachbarschaft zu Bankenviertel, MediaPark und Ehrenstraße profitieren Nutzer von einer hervorragenden Infrastruktur. Restaurants, Cafés und Geschäfte liegen in unmittelbarer Umgebung. Die Anbindung an den öffentlichen Nahverkehr sowie die schnelle Erreichbarkeit der wichtigsten Kölner Verkehrsachsen sind optimal. Tiefgaragenstellplätze im Quartier runden das Angebot ab.
Diese Bürofläche bietet die ideale Kombination aus repräsentativer Adresse, modernem Arbeitsumfeld und innerstädtischer Lage – ein perfektes Umfeld für erfolgreiche Unternehmen.
Lage
- Stadtteil: Neustadt-Nord
- Nahversorgung: Restaurants, Bistros, Geschäfte des täglichen Bedarfs
- Fußweg öffentl. Verkehr: 4 min
- Fahrzeit Autobahn: 4 min
- Fahrzeit Hauptbahnhof: 4 min
- Fahrzeit Flughafen: 25 min
- Straßenbahn: Linie 12,15 Haltestelle Christophstraße/ Mediapark;
Linie 3, 4, 5, 12,15 Haltestelle Friesenplatz
- Autobahn: A57 Richtung Düsseldorf mit Anbindung an A1 (Kreuz Köln Nord) Richtung Koblenz und Dortmund
Sonstiges
Der Mietpreis liegt zwischen 27,50 EUR/ m² und 29,00 EUR/ m² und richtet sich nach Lage, Größe und Ausstattung der Mietfläche im Objekt.
Sie haben noch nicht das richtige gefunden? Sprechen Sie uns an und lassen Sie uns die Arbeit machen. Gemeinsam finden wir Ihre Wunschimmobilie und beraten Sie gerne bei Ihrer Anmietung.
Der guten Ordnung halber, möchten wir Sie darauf aufmerksam machen, dass im Falle eines Vertragsabschlusses, bei nicht als provisionsfrei gekennzeichneten Objekten eine laufzeitabhängige Provision zzgl. gesetzlicher Umsatzsteuer gemäß unserer Allgemeinen Geschäftsbedingungen für Sie als Auftraggeber fällig wird. Die Höhe der Provision können Sie unter www.dgi-koeln.de einsehen.