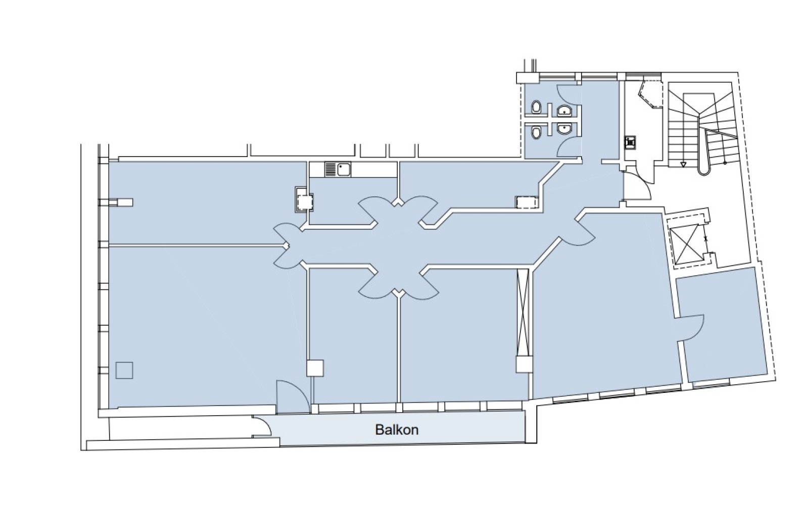
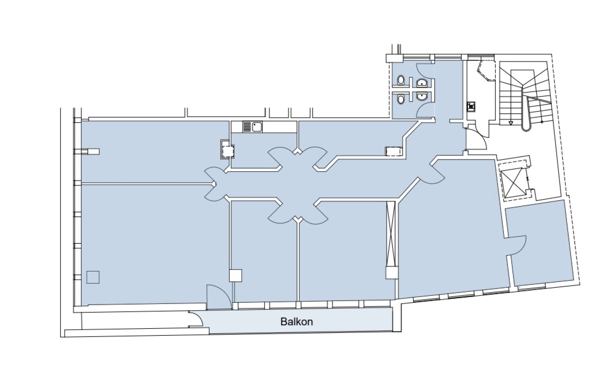
Zusätzlich verfügt die Immobilie über modern ausgestattete Sanitäranlagen und eine Teeküche, die zur gemeinsamen Nutzung zur Verfügung stehen. Parkplätze für Mitarbeiter und Besucher sind in unmittelbarer Nähe vorhanden. Die zentrale Lage des Gebäudes bietet eine gute Anbindung an öffentliche Verkehrsmittel und verschiedene Einkaufsmöglichkeiten. Diese Bürofläche eignet sich ideal für Unternehmen, die nach einem repräsentativen Arbeitsort mit guter Verkehrsanbindung suchen.
Büro mit Balkon am Rudolfplatz zu vermieten
Objekt melden
23 € (m²)
Mietpreis pro m²758 m²
Bürofläche227 m²
teilbar abkurzfristig bzw. nach Vereinbarung
Verfügbar abAdresse
50674 Köln
Download
Preise & Kosten
Angaben zur Immobilie
Objektbeschreibung
Die angebotene Immobilie ist eine Bürofläche in einem Gebäude, das im Jahr 1954 erbaut wurde. Die insgesamt sieben Etagen des Gebäudes sind über einen Aufzug erreichbar, wobei die Bürofläche auf den Etagen 2, 3 und 5 liegt. Das Gebäude befindet sich in einem gepflegten Zustand und ist barrierefrei zugänglich. Die Beheizung erfolgt über eine Zentralheizung, die für angenehme Temperaturen in den Räumlichkeiten sorgt.
Die Bürofläche bietet großzügige und helle Räumlichkeiten, die individuell gestaltet und genutzt werden können. Die insgesamt X Quadratmeter bieten ausreichend Platz für unterschiedliche Bürokonzepte und Arbeitsbereiche. Die großen Fenster ermöglichen eine helle und freundliche Arbeitsatmosphäre, während die verstellbaren Jalousien für Sonnenschutz und Privatsphäre sorgen.
Energieausweis
164.1 kWh/(a·m²)
Lage
- Stadtteil: Altstadt Nord
- Nahversorgung: Restaurants, Cafés, Lebensmittelmarkt, Geschäfte des täglichen Bedarfs
- Fußweg öffentl. Verkehr: 1 min.
- Fahrzeit Autobahn: 5 min.
- Fahrzeit Hauptbahnhof: 5 min.
- Fahrzeit Flughafen: 25 min.
- Straßenbahn: Linie 1, 7, 12, 15 Haltestelle Rudolfplatz
- Bus: 136, 146, Haltestelle Rudolfplatz
- Autobahn: A57 Richtung Düsseldorf
Anbindung Kreuz Köln-Nord Richtung Koblenz und Dortmund
Ausstattung
Sonstiges
Sie haben noch nicht das richtige gefunden? Sprechen Sie uns an und lassen Sie uns die Arbeit machen. Gemeinsam finden wir Ihre Wunschimmobilie und beraten Sie gerne bei Ihrer Anmietung.
Der guten Ordnung halber, möchten wir Sie darauf aufmerksam machen, dass im Falle eines Vertragsabschlusses, bei nicht als provisionsfrei gekennzeichneten Objekten eine laufzeitabhängige Provision zzgl. gesetzlicher Umsatzsteuer gemäß unserer Allgemeinen Geschäftsbedingungen für Sie als Auftraggeber fällig wird. Die Höhe der Provision können Sie unter www.dgi-koeln.de einsehen.
Kontaktanfrage
Dederichs & Göttlicher Immobilien GmbH