Identifikator: 7151#Njh8qJ

Vielseitiges Hallenareal mit Wohnhaus, Bürotrakt und großzügigen Außenflächen

Objekt melden

* Pflichtfelder

Objektbeschreibung

Das zur Vermietung stehende Areal befindet sich im Kerpener Gewerbegebiet (GE) unweit des Autobahnkreuzes Kerpen A4/A61. Auf dem Grundstück befindet sich ein stattliches Einfamilienhaus und ein Bürogebäude mit Produktions- und Lagerflächen.

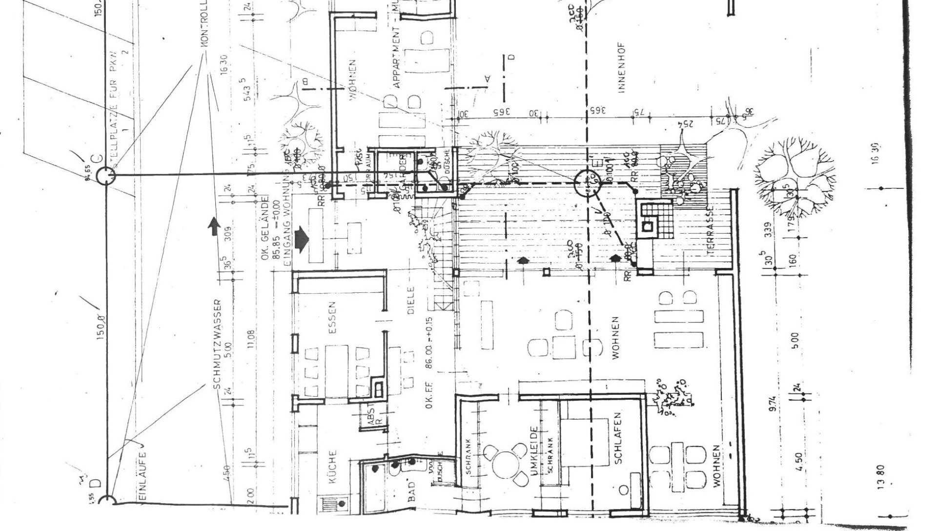
Das Wohnhaus im vorderen Teil des Grundstückes verfügt über eine Fläche von ca. 497 m² und wurde 1965 errichtet.

das durch einen angrenzenden Bürotrakt ergänzt wird. Der Bürotrakt kann auf Wunsch über eine Zwischentür direkt mit dem Wohnhaus verbunden werden und eröffnet damit flexible Nutzungsmöglichkeiten – ideal für kurze Wege zwischen Wohnen und Arbeiten.

Hinter dem Wohnhaus und dem Bürotrakt erstreckt sich ein großzügig angelegter Garten. Mit liebevoll gestalteten Grünflächen und mehreren Terrassen bietet er sowohl vom Wohnhaus als auch vom Bürotrakt aus einen direkten Zugang und schafft damit eine angenehme Verbindung von Arbeit, Wohnen und Erholung.

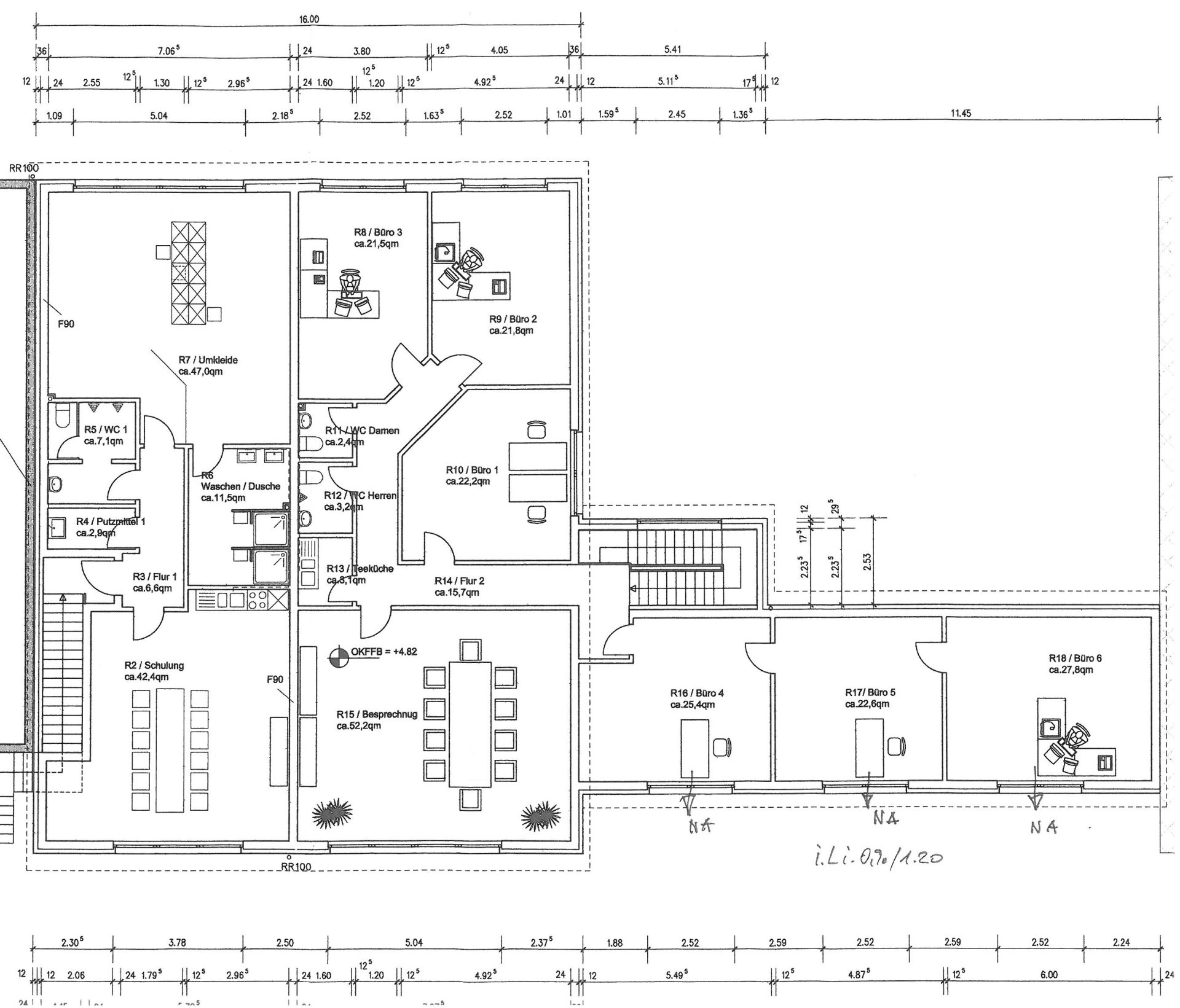
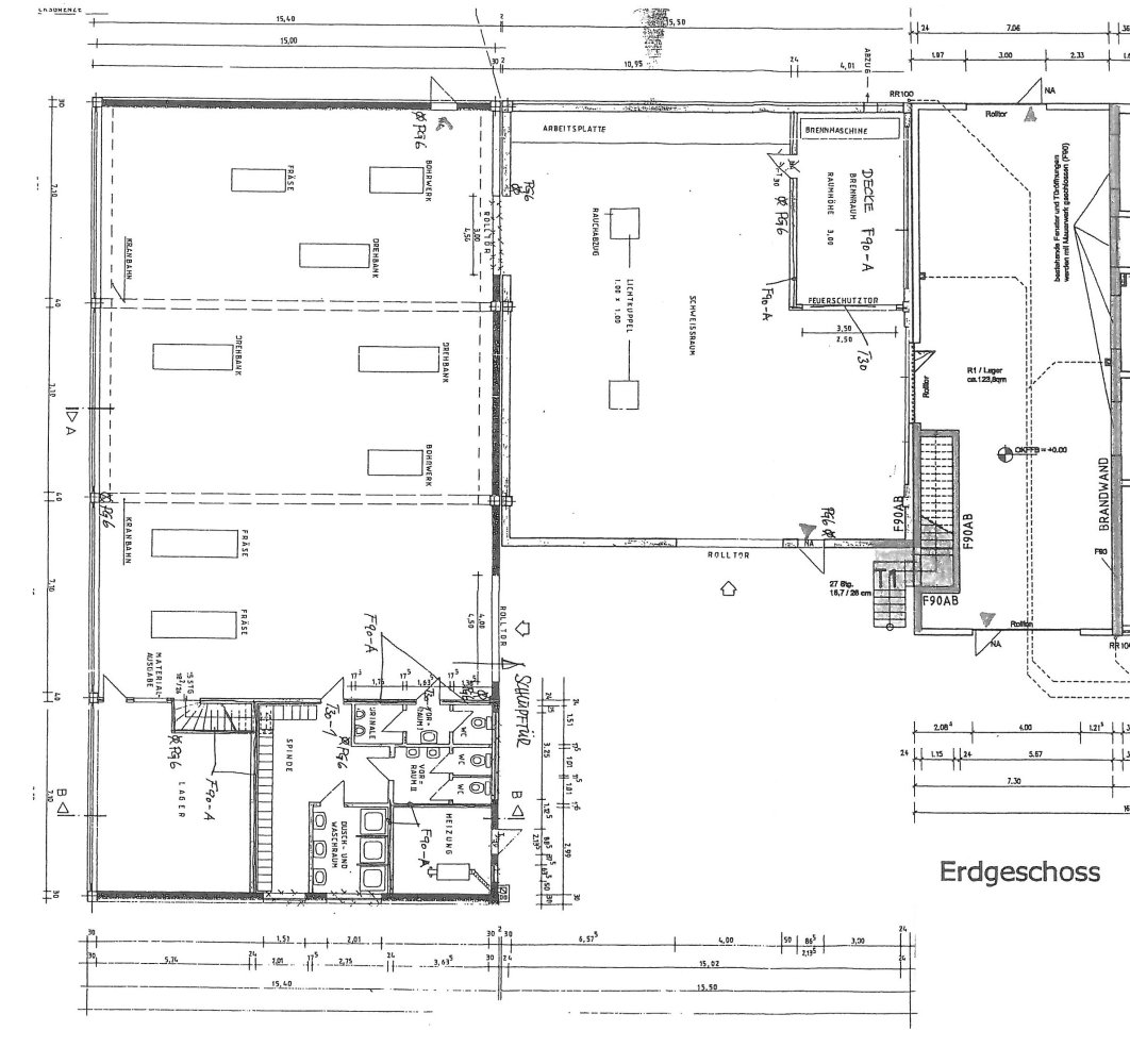
Über die lange Zufahrt gelangt man in den hinteren gewerblich genutzten Teil zu dem Bürogebäude mit einer Fläche von ca. 687 m² und dazu angrenzend die Produktions- und Lagerflächen mit ca. 1.007 m².

Das Büro verfügt im EG über 5 Büroräume ein Küchenbereich, Toiletten und einen klimatisierten Serverraum. Alle Büros haben Klimageräte, die individuell steuerbar sind. Im OG befindet sich Archivfläche für die Lagerung von Akten. Im 2.OG befinden sich 6 Büros, getrennte Damen und Herren WC´s, eine Küche und ein großer Konferenzraum.

In der Produktionshalle wurde ein großes Büro mit Einbauküche und in der Lagerhalle Aufenthaltsräume mit Küchen, Umkleidekabinen sowie Duschen und weitere Toilettenräume geschaffen.

Energieverbrauchskennwert
307.6 kWh / (a·m²)
0
>250
Gebäudeart
Gewerbeimmobilie
Energieausweis
Verbrauch
Energieverbrauchskennwert
307.6
Baujahr lt. Energieausweis
1965
Primärenergieträger
Erdgas leicht
Stromverbrauchskennwert kWh/(·a)
471
Heizenergie­verbrauchs­kennwert kWh/(·a)
2.026

Sonstiges

Sie haben noch nicht das richtige gefunden? Sprechen Sie uns an und lassen Sie uns die Arbeit machen. Gemeinsam finden wir Ihre Wunschimmobilie und beraten Sie gerne bei Ihrer Anmietung.

Der guten Ordnung halber, möchten wir Sie darauf aufmerksam machen, dass im Falle eines Vertragsabschlusses, bei nicht als provisionsfrei gekennzeichneten Objekten eine laufzeitabhängige Provision zzgl. gesetzlicher Umsatzsteuer gemäß unserer Allgemeinen Geschäftsbedingungen für Sie als Auftraggeber fällig wird. Die Höhe der Provision können Sie unter www.dgi-koeln.de einsehen.