Büro/Praxis, Miete, Köln
Repräsentativ! Hochwertige Büros in den Kaiserbüros

Repräsentativ! Hochwertige Büros in den Kaiserbüros

Objektbeschreibung

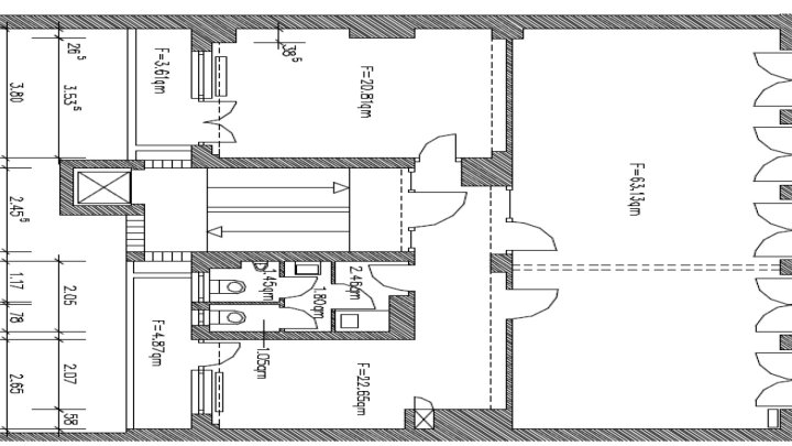
Die hier angebotene Bürofläche befindet sich im vierten Stock eines sechsgeschossigen Gebäudes aus dem Jahr 1953, das dank seiner neuen Fassade in einem repräsentativen und neuwertigen Zustand erstrahlt.



Die Räumlichkeiten überzeugen durch ihre helle und großzügige Gestaltung, die vielfältige Nutzungsmöglichkeiten eröffnet. Auf einer Gesamtfläche von 150 m² lassen sich sowohl individuelle Arbeitsplätze als auch Konferenzräume flexibel einrichten. Große Fenster sorgen für eine lichtdurchflutete Atmosphäre und ein angenehmes Arbeitsumfeld.



Ein besonderes Highlight sind die beiden kleinen Terrassen, die zusätzlichen Raum für entspannte Pausen oder Meetings im Freien bieten. Dank eines Aufzugs ist die Bürofläche barrierefrei zugänglich. Parkmöglichkeiten stehen direkt vor dem Gebäude sowie in der näheren Umgebung zur Verfügung.



Die zentrale Lage garantiert eine hervorragende Anbindung an den öffentlichen Nahverkehr und bietet zahlreiche Einkaufsmöglichkeiten in unmittelbarer Nähe. Eine ideale Wahl für Unternehmen, die Wert auf eine moderne, gut erreichbare Arbeitsumgebung legen.

Lage

- Stadtteil: Neustadt-Nord

- Nahversorgung: Restaurants, Bistros, Geschäfte des täglichen Bedarfs

- Fußweg öffentl. Verkehr: 3 min.

- Fahrzeit Autobahn: 6 min.

- Fahrzeit Hauptbahnhof: 5 min.

- Fahrzeit Flughafen: 25 min.

- Straßenbahn: Linie 12,15 Haltestelle Christophstraße/ Mediapark

- Autobahn: A57 Richtung Düsseldorf, Anbindung an A1 (Kreuz Köln Nord) Richtung Koblenz und Dortmund

Sonstiges

Sie haben noch nicht das richtige gefunden? Sprechen Sie uns an und lassen Sie uns die Arbeit machen. Gemeinsam finden wir Ihre Wunschimmobilie und beraten Sie gerne bei Ihrer Anmietung.



Der guten Ordnung halber, möchten wir Sie darauf aufmerksam machen, dass im Falle eines Vertragsabschlusses, bei nicht als provisionsfrei gekennzeichneten Objekten eine laufzeitabhängige Provision zzgl. gesetzlicher Umsatzsteuer gemäß unserer Allgemeinen Geschäftsbedingungen für Sie als Auftraggeber fällig wird. Die Höhe der Provision können Sie unter www.dgi-koeln.de einsehen.

25,50 € (m²)

Mietpreis pro m²

145 m²

Bürofläche

kurzfristig bzw. nach Vereinbarung

Verfügbar ab

Adresse

50672 Köln

Preise & Kosten

Mieter-Provision
Provisionshinweis
provisionspflichtig, siehe Allgemeine Geschäftsbedingungen
Mietpreis pro m²
25,50 € (m²)
Nebenkosten von
4,82 €

Angaben zur Immobilie

Objektart
Bürofläche
Bürofläche
145 m²
Baujahr
1953
Zustand des Objektes
Neuwertig
Verfügbar ab
kurzfristig bzw. nach Vereinbarung

Objektbeschreibung

Die hier angebotene Bürofläche befindet sich im vierten Stock eines sechsgeschossigen Gebäudes aus dem Jahr 1953, das dank seiner neuen Fassade in einem repräsentativen und neuwertigen Zustand erstrahlt.

Die Räumlichkeiten überzeugen durch ihre helle und großzügige Gestaltung, die vielfältige Nutzungsmöglichkeiten eröffnet. Auf einer Gesamtfläche von 150 m² lassen sich sowohl individuelle Arbeitsplätze als auch Konferenzräume flexibel einrichten. Große Fenster sorgen für eine lichtdurchflutete Atmosphäre und ein angenehmes Arbeitsumfeld.

Ein besonderes Highlight sind die beiden kleinen Terrassen, die zusätzlichen Raum für entspannte Pausen oder Meetings im Freien bieten. Dank eines Aufzugs ist die Bürofläche barrierefrei zugänglich.

Parkmöglichkeiten stehen direkt vor dem Gebäude sowie in der näheren Umgebung zur Verfügung.

Die zentrale Lage garantiert eine hervorragende Anbindung an den öffentlichen Nahverkehr und bietet zahlreiche Einkaufsmöglichkeiten in unmittelbarer Nähe. Eine ideale Wahl für Unternehmen, die Wert auf eine moderne, gut erreichbare Arbeitsumgebung legen.

Energieausweis

0
>250
Endenergiebedarf
250 kWh/(a·m²)
Gebäudeart
Gewerbeimmobilie
Energieausweis
Bedarf
Endenergiebedarf
250
Baujahr lt. Energieausweis
1953
Primärenergieträger
Fernwärme

Ausstattung

Heizungsart
Zentralheizung
Befeuerung
Fernwärme
Aufzug
Personenaufzug
DV-Verkabelung

Sonstiges

Sie haben noch nicht das richtige gefunden? Sprechen Sie uns an und lassen Sie uns die Arbeit machen. Gemeinsam finden wir Ihre Wunschimmobilie und beraten Sie gerne bei Ihrer Anmietung.

Der guten Ordnung halber, möchten wir Sie darauf aufmerksam machen, dass im Falle eines Vertragsabschlusses, bei nicht als provisionsfrei gekennzeichneten Objekten eine laufzeitabhängige Provision zzgl. gesetzlicher Umsatzsteuer gemäß unserer Allgemeinen Geschäftsbedingungen für Sie als Auftraggeber fällig wird. Die Höhe der Provision können Sie unter www.dgi-koeln.de einsehen.

Bilder

Repräsentativ! Hochwertige Büros in den Kaiserbüros
Repräsentativ! Hochwertige Büros in den Kaiserbüros
Repräsentativ! Hochwertige Büros in den Kaiserbüros
Repräsentativ! Hochwertige Büros in den Kaiserbüros
Repräsentativ! Hochwertige Büros in den Kaiserbüros
Repräsentativ! Hochwertige Büros in den Kaiserbüros
Repräsentativ! Hochwertige Büros in den Kaiserbüros
Repräsentativ! Hochwertige Büros in den Kaiserbüros
Repräsentativ! Hochwertige Büros in den Kaiserbüros
Repräsentativ! Hochwertige Büros in den Kaiserbüros
Repräsentativ! Hochwertige Büros in den Kaiserbüros
Repräsentativ! Hochwertige Büros in den Kaiserbüros