Büro/Praxis, Miete, Köln
Untermieter gesucht! Loftiges Büro in Köln-Ossendorf!

Untermieter gesucht! Loftiges Büro in Köln-Ossendorf!

Objektbeschreibung

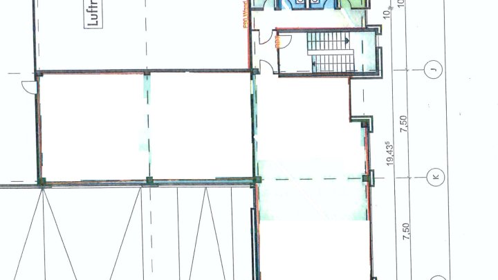
Die angebotene Bürofläche befindet sich in einem gepflegten Gebäude aus dem Baujahr 1989, welches ein Erdgeschoss mit Hallenflächen und eine Büroetage umfasst. Die Mietfläche überzeugt durch eine moderne, loftartige Ausstattung und ist über ein helles Treppenhaus im ersten Obergeschoss erreichbar. Zwei Parkplätze direkt vor dem Gebäude stehen ebenfalls zur Verfügung.



Die lichtdurchflutete Bürofläche im Großraumstil bietet eine flexible Raumaufteilung und vielseitige Nutzungsmöglichkeiten. Große Fenster schaffen eine angenehme, offene Arbeitsatmosphäre. Zusätzlich besteht die Option, vorhandene Möbel zu übernehmen, was einen schnellen und unkomplizierten Start ermöglicht.



Für den Komfort der Mitarbeiter stehen eine moderne Küche sowie Sanitäranlagen zur Verfügung. Durch die Untervermietung gibt es die Möglichkeit eine flexible Mietlaufzeit abzuschließen. Zudem macht der All-Inclusive-Preis diese Fläche besonders attraktiv für Unternehmen, die eine gut erreichbare und vielseitig nutzbare Bürofläche suchen.

Lage

- Stadtteil: Ossendorf

- Nahversorgung: Restaurants, Bäckerei, Kantine

- Fußweg öffentl. Verkehr: 1 min.

- Fahrzeit Autobahn: 4 min.

- Fahrzeit Hauptbahnhof: 15 min.

- Fahrzeit Flughafen: 30 min.

- Bus: 127, 139 Haltestelle Mathias-Brüggen-Straße

- Autobahn: A57 Richtung Düsseldorf, A1 Richtung Koblenz und Dortmund

Sonstiges

Der Mietpreis ist als Pauschalmietpreis inkl. Nebenkosten und zwei Stellplätze zzgl. MwSt. zu verstehen.



Sie haben noch nicht das richtige gefunden? Sprechen Sie uns an und lassen Sie uns die Arbeit machen. Gemeinsam finden wir Ihre Wunschimmobilie und beraten Sie gerne bei Ihrer Anmietung.



Der guten Ordnung halber, möchten wir Sie darauf aufmerksam machen, dass im Falle eines Vertragsabschlusses, bei nicht als provisionsfrei gekennzeichneten Objekten eine laufzeitabhängige Provision zzgl. gesetzlicher Umsatzsteuer gemäß unserer Allgemeinen Geschäftsbedingungen für Sie als Auftraggeber fällig wird. Die Höhe der Provision können Sie unter www.dgi-koeln.de einsehen.

9,80 € (m²)

Mietpreis pro m²

306 m²

Bürofläche

April 2025 bzw. nach Vereinbarung

Verfügbar ab

Adresse

50829 Köln

Preise & Kosten

Mieter-Provision
Provisionshinweis
provisionspflichtig, siehe Allgemeine Geschäftsbedingungen
Nebenkosten
1.000 €
Mietpreis pro m²
9,80 € (m²)
Anzahl Freiplatz
2

Angaben zur Immobilie

Objektart
Bürofläche
Bürofläche
306 m²
Anzahl Stellplätze
2
Baujahr
1989
Zustand des Objektes
Gepflegt
Verfügbar ab
April 2025 bzw. nach Vereinbarung

Objektbeschreibung

Die angebotene Bürofläche befindet sich in einem gepflegten Gebäude aus dem Baujahr 1989, welches ein Erdgeschoss mit Hallenflächen und eine Büroetage umfasst. Die Mietfläche überzeugt durch eine moderne, loftartige Ausstattung und ist über ein helles Treppenhaus im ersten Obergeschoss erreichbar. Zwei Parkplätze direkt vor dem Gebäude stehen ebenfalls zur Verfügung.

Die lichtdurchflutete Bürofläche im Großraumstil bietet eine flexible Raumaufteilung und vielseitige Nutzungsmöglichkeiten. Große Fenster schaffen eine angenehme, offene Arbeitsatmosphäre. Zusätzlich besteht die Option, vorhandene Möbel zu übernehmen, was einen schnellen und unkomplizierten Start ermöglicht.

Für den Komfort der Mitarbeiter stehen eine moderne Küche sowie Sanitäranlagen zur Verfügung. Durch die Untervermietung gibt es die Möglichkeit eine flexible Mietlaufzeit abzuschließen. Zudem macht der All-Inclusive-Preis diese Fläche besonders attraktiv für Unternehmen, die eine gut erreichbare und vielseitig nutzbare Bürofläche suchen.

Energieausweis

0
>250
Endenergiebedarf
250 kWh/(a·m²)
Gebäudeart
Gewerbeimmobilie
Energieausweis
Bedarf
Endenergiebedarf
250
Warmwasser enthalten
Baujahr lt. Energieausweis
1989
Primärenergieträger
Gas
Stromverbrauchskennwert kWh/(·a)
349
Heizenergie­verbrauchs­kennwert kWh/(·a)
3.440

Ausstattung

Räume veränderbar
Heizungsart
Zentralheizung
Befeuerung
Gas
Stellplatzart
Freiplatz

Sonstiges

Der Mietpreis ist als Pauschalmietpreis inkl. Nebenkosten und zwei Stellplätze zzgl. MwSt. zu verstehen.

Sie haben noch nicht das richtige gefunden? Sprechen Sie uns an und lassen Sie uns die Arbeit machen. Gemeinsam finden wir Ihre Wunschimmobilie und beraten Sie gerne bei Ihrer Anmietung.

Der guten Ordnung halber, möchten wir Sie darauf aufmerksam machen, dass im Falle eines Vertragsabschlusses, bei nicht als provisionsfrei gekennzeichneten Objekten eine laufzeitabhängige Provision zzgl. gesetzlicher Umsatzsteuer gemäß unserer Allgemeinen Geschäftsbedingungen für Sie als Auftraggeber fällig wird. Die Höhe der Provision können Sie unter www.dgi-koeln.de einsehen.

Bilder

Untermieter gesucht! Loftiges Büro in Köln-Ossendorf!
Untermieter gesucht! Loftiges Büro in Köln-Ossendorf!
Untermieter gesucht! Loftiges Büro in Köln-Ossendorf!
Untermieter gesucht! Loftiges Büro in Köln-Ossendorf!
Untermieter gesucht! Loftiges Büro in Köln-Ossendorf!
Untermieter gesucht! Loftiges Büro in Köln-Ossendorf!
Untermieter gesucht! Loftiges Büro in Köln-Ossendorf!
Untermieter gesucht! Loftiges Büro in Köln-Ossendorf!
Untermieter gesucht! Loftiges Büro in Köln-Ossendorf!
Untermieter gesucht! Loftiges Büro in Köln-Ossendorf!
Untermieter gesucht! Loftiges Büro in Köln-Ossendorf!