Büro/Praxis, Miete, Köln
Alleinauftrag! Loftbüro mit Terrasse in ruhiger Lage

Alleinauftrag! Loftbüro mit Terrasse in ruhiger Lage

Objektbeschreibung

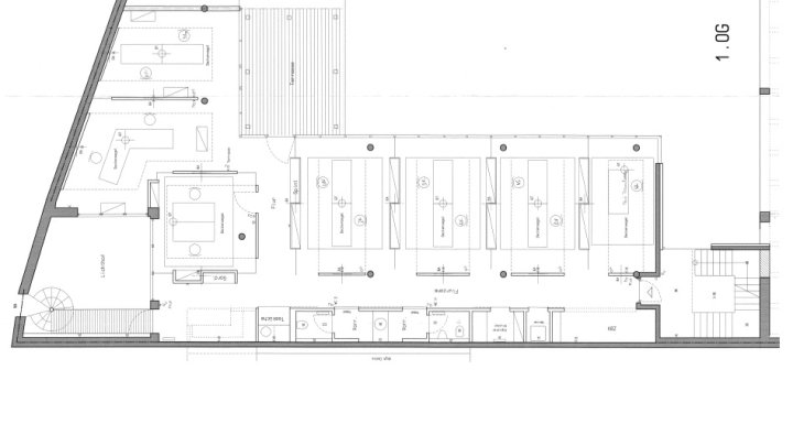
Die Bürofläche im zweiten Obergeschoss eines modernen Gebäudes aus dem Jahr 2003 überzeugt durch ihren loftartigen Charakter und die klare, reduzierte Gestaltung. Sichtbetondecken und ein eleganter Betonboden verleihen den Räumen einen urbanen, modernen Look, der sich ideal für kreative Arbeitsumgebungen eignet.



Die Aufteilung ist funktional und gleichzeitig offen gehalten, sodass unterschiedliche Arbeitsplatzkonzepte umgesetzt werden können. Großzügige Fensterfronten sorgen für viel Tageslicht und eine freundliche Atmosphäre. Ein besonderes Highlight ist die großzügige Terrasse, die exklusiv zu dieser Einheit gehört und zusätzlichen Raum für Pausen oder Besprechungen im Freien bietet.



Die Fläche präsentiert sich hell, modern und repräsentativ – ideal für Unternehmen, die Wert auf ein inspirierendes Arbeitsumfeld legen. Zwei Stellplätze in der hauseigenen Tiefgarage stehen zur Verfügung und sorgen für zusätzlichen Komfort.

Lage

- Stadtteil: Gereonsviertel

- Nahversorgung: Restaurants, Cafés, Kiosk, Geschäfte des täglichen Bedars

- Fußweg öffentl. Verkehr: 5 min.

- Fahrzeit Autobahn: 5 min.

- Fahrzeit Hauptbahnhof: 5 min.

- Fahrzeit Flughafen: 20 min.

- S-Bahn: S 6, 11, 12, 13 Haltestelle Hansaring

- Straßenbahn: Linien 12, 15 Haltestelle Christophstraße/ Mediapark; 12, 15 Haltestelle Hansaring

- Bus: 127 Haltestelle Hansaring

- Fernverkehr: Regionalverkehr RE 1, 5 , 7, 8 , 9, 12, 22; RB 24, 27, 38, 48; MRB 26

- Autobahn: A57 Richtung Düsseldorf (Kreuz Köln Nord), A1 Richtung Koblenz und Dortmund

Sonstiges

Sie haben noch nicht das richtige gefunden? Sprechen Sie uns an und lassen Sie uns die Arbeit machen. Gemeinsam finden wir Ihre Wunschimmobilie und beraten Sie gerne bei Ihrer Anmietung.



Der guten Ordnung halber, möchten wir Sie darauf aufmerksam machen, dass im Falle eines Vertragsabschlusses, bei nicht als provisionsfrei gekennzeichneten Objekten eine laufzeitabhängige Provision zzgl. gesetzlicher Umsatzsteuer gemäß unserer Allgemeinen Geschäftsbedingungen für Sie als Auftraggeber fällig wird. Die Höhe der Provision können Sie unter www.dgi-koeln.de einsehen.



Wir möchten Sie darüber informieren, dass seit dem 01. Mai 2014 die zweite Verordnung zur Änderung der Energieeinsparverordnung ihre Gültigkeit erlangt hat. Nach den Paragraphen 16 und 16a EnEV sind die Vermieter/Verkäufer bei der Vermarktung von Immobilien dazu verpflichtet, den Energieausweis der Immobilie auszuhändigen und die energetischen Kennwerte mit in die Inserate aufzunehmen. Bei all unseren inserierten Immobilien haben wir nachweislich darauf aufmerksam gemacht. Sollten die erforderlichen Kennzahlen nicht angegeben sein, liegt uns noch kein Energieausweise vor.

21 € (m²)

Mietpreis pro m²

230 m²

Bürofläche

ab November 2025 bzw. nach Vereinbarung

Verfügbar ab

Adresse

50670 Köln

Preise & Kosten

Mieter-Provision
Provisionshinweis
provisionspflichtig, siehe Allgemeine Geschäftsbedingungen
Mietpreis pro m²
21 € (m²)
Anzahl Freiplatz
2
Nebenkosten von
4 €

Angaben zur Immobilie

Objektart
Bürofläche
Bürofläche
230 m²
Anzahl Stellplätze
2
Baujahr
2003
Zustand des Objektes
Neuwertig
Verfügbar ab
ab November 2025 bzw. nach Vereinbarung

Objektbeschreibung

Die Bürofläche im zweiten Obergeschoss eines modernen Gebäudes aus dem Jahr 2003 überzeugt durch ihren loftartigen Charakter und die klare, reduzierte Gestaltung. Sichtbetondecken und ein eleganter Betonboden verleihen den Räumen einen urbanen, modernen Look, der sich ideal für kreative Arbeitsumgebungen eignet.

Die Aufteilung ist funktional und gleichzeitig offen gehalten, sodass unterschiedliche Arbeitsplatzkonzepte umgesetzt werden können. Großzügige Fensterfronten sorgen für viel Tageslicht und eine freundliche Atmosphäre. Ein besonderes Highlight ist die großzügige Terrasse, die exklusiv zu dieser Einheit gehört und zusätzlichen Raum für Pausen oder Besprechungen im Freien bietet.

Die Fläche präsentiert sich hell, modern und repräsentativ – ideal für Unternehmen, die Wert auf ein inspirierendes Arbeitsumfeld legen. Zwei Stellplätze in der hauseigenen Tiefgarage stehen zur Verfügung und sorgen für zusätzlichen Komfort.

Ausstattung

Heizungsart
Zentralheizung
Befeuerung
Fernwärme
Stellplatzart
Tiefgarage
DV-Verkabelung

Sonstiges

Sie haben noch nicht das richtige gefunden? Sprechen Sie uns an und lassen Sie uns die Arbeit machen. Gemeinsam finden wir Ihre Wunschimmobilie und beraten Sie gerne bei Ihrer Anmietung.

Der guten Ordnung halber, möchten wir Sie darauf aufmerksam machen, dass im Falle eines Vertragsabschlusses, bei nicht als provisionsfrei gekennzeichneten Objekten eine laufzeitabhängige Provision zzgl. gesetzlicher Umsatzsteuer gemäß unserer Allgemeinen Geschäftsbedingungen für Sie als Auftraggeber fällig wird. Die Höhe der Provision können Sie unter www.dgi-koeln.de einsehen.

Wir möchten Sie darüber informieren, dass seit dem 01. Mai 2014 die zweite Verordnung zur Änderung der Energieeinsparverordnung ihre Gültigkeit erlangt hat.

Nach den Paragraphen 16 und 16a EnEV sind die Vermieter/Verkäufer bei der Vermarktung von Immobilien dazu verpflichtet, den Energieausweis der Immobilie auszuhändigen und die energetischen Kennwerte mit in die Inserate aufzunehmen. Bei all unseren inserierten Immobilien haben wir nachweislich darauf aufmerksam gemacht. Sollten die erforderlichen Kennzahlen nicht angegeben sein, liegt uns noch kein Energieausweise vor.

Bilder

Alleinauftrag! Loftbüro mit Terrasse in ruhiger Lage
Alleinauftrag! Loftbüro mit Terrasse in ruhiger Lage
Alleinauftrag! Loftbüro mit Terrasse in ruhiger Lage
Alleinauftrag! Loftbüro mit Terrasse in ruhiger Lage
Alleinauftrag! Loftbüro mit Terrasse in ruhiger Lage
Alleinauftrag! Loftbüro mit Terrasse in ruhiger Lage
Alleinauftrag! Loftbüro mit Terrasse in ruhiger Lage
Alleinauftrag! Loftbüro mit Terrasse in ruhiger Lage
Alleinauftrag! Loftbüro mit Terrasse in ruhiger Lage
Alleinauftrag! Loftbüro mit Terrasse in ruhiger Lage
Alleinauftrag! Loftbüro mit Terrasse in ruhiger Lage