Hallen/Lager/Produktion, Miete, Köln
Funktionale Lagerflächen mit angeschlossenen Büros

Funktionale Lagerflächen mit angeschlossenen Büros

Objektbeschreibung

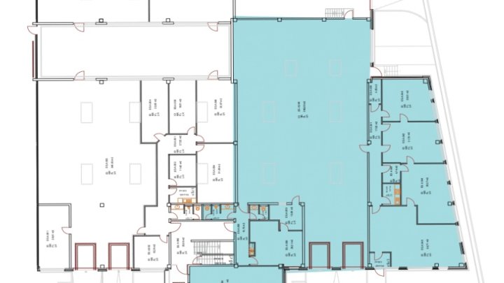
Das gewerblich genutzte Gelände ist in einem guten Zustand und optisch durch die Klinkerfassade ansprechend gebaut. Die Mietflächen teilen sich auf verschiedene Häuser und Büro- und Hallenflächen auf. Die derzeit vakanten Einheiten sind eine Kombination aus Lager mit ca. 388 m² und Bürofläche mit ca. 307 m². Stellplätze können auf dem Gelände im Parkhaus und als Außenstellplatz angemietet werden.

Lage

- Stadtteil: Bilderstöckchen

- Nahversorgung: Kiosk, Lebensmittelmarkt

- Fußweg öffentl. Verkehr: 2 min.

- Fahrzeit Autobahn: 2 min.

- Fahrzeit Hauptbahnhof: 15 min.

- Fahrzeit Flughafen: 30 min.

- Bus: Linie 121 Haltestelle Robert-Perthel-Straße

- Autobahn: A57 Richtung Düsseldorf, Anbindung an A1 (Kreuz Köln Nord) Koblenz und Dortmund

Sonstiges

Sie haben noch nicht das richtige gefunden? Sprechen Sie uns an und lassen Sie uns die Arbeit machen. Gemeinsam finden wir Ihre Wunschimmobilie und beraten Sie gerne bei Ihrer Anmietung.



Der guten Ordnung halber, möchten wir Sie darauf aufmerksam machen, dass im Falle eines Vertragsabschlusses, bei nicht als provisionsfrei gekennzeichneten Objekten eine laufzeitabhängige Provision zzgl. gesetzlicher Umsatzsteuer gemäß unserer Allgemeinen Geschäftsbedingungen für Sie als Auftraggeber fällig wird. Die Höhe der Provision können Sie unter www.dgi-koeln.de einsehen.

10,21 € (m²)

Mietpreis pro m²

942 m²

Bürofläche

nach Vereinbarung

Verfügbar ab

Adresse

50739 Köln

Preise & Kosten

Provisionshinweis
provisionsfrei
Mietpreis pro m²
10,21 € (m²)
Anzahl Freiplatz
300

Angaben zur Immobilie

Objektart
Lagerfläche
Lagerfläche
720 m²
Bürofläche
942 m²
Anzahl Stellplätze
300
Baujahr
1999
Zustand des Objektes
Nach Vereinbarung
Verfügbar ab
nach Vereinbarung

Objektbeschreibung

Das gewerblich genutzte Gelände ist in einem guten Zustand und optisch durch die Klinkerfassade ansprechend gebaut. Die Mietflächen teilen sich auf verschiedene Häuser und Büro- und Hallenflächen auf. Die derzeit vakanten Einheiten sind eine Kombination aus Lager mit ca. 388 m² und Bürofläche mit ca. 307 m². Stellplätze können auf dem Gelände im Parkhaus und als Außenstellplatz angemietet werden.

Energieausweis

Gebäudeart
Gewerbeimmobilie
Energieausweis
Bedarf
Baujahr lt. Energieausweis
1999
Primärenergieträger
Gas
Stromverbrauchskennwert kWh/(·a)
50
Heizenergie­verbrauchs­kennwert kWh/(·a)
811

Ausstattung

Aufzug
Personenaufzug
Stellplatzart
Tiefgarage

Sonstiges

Sie haben noch nicht das richtige gefunden? Sprechen Sie uns an und lassen Sie uns die Arbeit machen. Gemeinsam finden wir Ihre Wunschimmobilie und beraten Sie gerne bei Ihrer Anmietung.

Der guten Ordnung halber, möchten wir Sie darauf aufmerksam machen, dass im Falle eines Vertragsabschlusses, bei nicht als provisionsfrei gekennzeichneten Objekten eine laufzeitabhängige Provision zzgl. gesetzlicher Umsatzsteuer gemäß unserer Allgemeinen Geschäftsbedingungen für Sie als Auftraggeber fällig wird. Die Höhe der Provision können Sie unter www.dgi-koeln.de einsehen.

Bilder

Funktionale Lagerflächen mit angeschlossenen Büros
Funktionale Lagerflächen mit angeschlossenen Büros
Funktionale Lagerflächen mit angeschlossenen Büros
Funktionale Lagerflächen mit angeschlossenen Büros
Funktionale Lagerflächen mit angeschlossenen Büros
Funktionale Lagerflächen mit angeschlossenen Büros
Funktionale Lagerflächen mit angeschlossenen Büros