Büro/Praxis, Miete, Köln
Mitten im Veedel!!! Schicke Büros mit großen Terrassenflächen

Mitten im Veedel!!! Schicke Büros mit großen Terrassenflächen

Objektbeschreibung

Mitten im beliebten Belgischen Viertel, umgeben von trendigen Cafés, charmanten Restaurants und kreativem Stadtflair, befindet sich dieses hochwertige Bürogebäude.



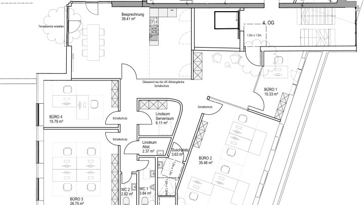
Über das lichtdurchflutete Treppenhaus oder den großzügigen Aufzug gelangen Sie bequem in die Büroetagen. Die sanierte Einheit überzeugt durch edle Parkettböden, ein hochwertiges Glastrennwandsystem und einen durchdachten, flexiblen Grundriss, der moderne New-Work-Konzepte perfekt unterstützt.



Große Glasflächen sorgen für eine freundliche, offene Atmosphäre, während die großzügige Terrasse zusätzlichen Raum für Pausen oder kreative Meetings im Freien bietet. Tiefgaragenstellplätze können bei Bedarf im Gebäude angemietet werden.



Ein Büro, das Stil, Funktionalität und Lage ideal vereint – perfekt für Unternehmen, die Wert auf ein inspirierendes Arbeitsumfeld legen.

Lage

- Stadtteil: Neustadt-Süd

- Nahversorgung: Restaurants, Cafés, Lebensmittelmarkt, Geschäfte des täglichen Bedarfs

- Fußweg öffentl. Verkehr: 2 min.

- Fahrzeit Autobahn: 6 min.

- Fahrzeit Hauptbahnhof: 6 min.

- Fahrzeit Flughafen: 25 min.

- Straßenbahn: Linie 1, 7, 12, 15 Haltestelle Rudolfplatz

- Bus: 136, 146, Haltestelle Rudolfplatz

- Autobahn: A57 Richtung Düsseldorf, Anbindung Kreuz Köln-Nord Richtung Koblenz und Dortmund

Sonstiges

Sie haben noch nicht das richtige gefunden? Sprechen Sie uns an und lassen Sie uns die Arbeit machen. Gemeinsam finden wir Ihre Wunschimmobilie und beraten Sie gerne bei Ihrer Anmietung.



Der guten Ordnung halber, möchten wir Sie darauf aufmerksam machen, dass im Falle eines Vertragsabschlusses, bei nicht als provisionsfrei gekennzeichneten Objekten eine Provision zzgl. gesetzlicher Umsatzsteuer gemäß unserer Allgemeinen Geschäftsbedingungen für Sie als Auftraggeber fällig wird. Die Höhe der Provision können Sie unter www.dgi-koeln.de einsehen.



Wir möchten Sie darüber informieren, dass seit dem 01. Mai 2014 die zweite Verordnung zur Änderung der Energieeinsparverordnung ihre Gültigkeit erlangt hat. Nach den Paragraphen 16 und 16a EnEV sind die Vermieter/Verkäufer bei der Vermarktung von Immobilien dazu verpflichtet, den Energieausweis der Immobilie auszuhändigen und die energetischen Kennwerte mit in die Inserate aufzunehmen. Bei all unseren inserierten Immobilien haben wir die Vermieter/ Verkäufer nachweislich darauf aufmerksam gemacht und die erforderlichen Energieausweise angefordert.

23,50 € (m²)

Mietpreis pro m²

226 m²

Bürofläche

kurzfristig bzw. nach Vereinbarung

Verfügbar ab

Adresse

50674 Köln

Preise & Kosten

Mieter-Provision
Provisionshinweis
provisionspflichtig, siehe Allgemeine Geschäftsbedingungen
Mietpreis pro m²
23,50 € (m²)
Nebenkosten von
3,50 €

Angaben zur Immobilie

Objektart
Bürofläche
Bürofläche
226 m²
Zustand des Objektes
Modernisiert
Verfügbar ab
kurzfristig bzw. nach Vereinbarung

Objektbeschreibung

Mitten im beliebten Belgischen Viertel, umgeben von trendigen Cafés, charmanten Restaurants und kreativem Stadtflair, befindet sich dieses hochwertige Bürogebäude.

Über das lichtdurchflutete Treppenhaus oder den großzügigen Aufzug gelangen Sie bequem in die Büroetagen. Die sanierte Einheit überzeugt durch edle Parkettböden, ein hochwertiges Glastrennwandsystem und einen durchdachten, flexiblen Grundriss, der moderne New-Work-Konzepte perfekt unterstützt.

Große Glasflächen sorgen für eine freundliche, offene Atmosphäre, während die großzügige Terrasse zusätzlichen Raum für Pausen oder kreative Meetings im Freien bietet. Tiefgaragenstellplätze können bei Bedarf im Gebäude angemietet werden.

Ein Büro, das Stil, Funktionalität und Lage ideal vereint – perfekt für Unternehmen, die Wert auf ein inspirierendes Arbeitsumfeld legen.

Ausstattung

Heizungsart
Zentralheizung
Befeuerung
Fernwärme
Klimatisiert
Stellplatzart
Tiefgarage
Barrierefrei
DV-Verkabelung

Sonstiges

Sie haben noch nicht das richtige gefunden? Sprechen Sie uns an und lassen Sie uns die Arbeit machen. Gemeinsam finden wir Ihre Wunschimmobilie und beraten Sie gerne bei Ihrer Anmietung.

Der guten Ordnung halber, möchten wir Sie darauf aufmerksam machen, dass im Falle eines Vertragsabschlusses, bei nicht als provisionsfrei gekennzeichneten Objekten eine Provision zzgl. gesetzlicher Umsatzsteuer gemäß unserer Allgemeinen Geschäftsbedingungen für Sie als Auftraggeber fällig wird. Die Höhe der Provision können Sie unter www.dgi-koeln.de einsehen.

Wir möchten Sie darüber informieren, dass seit dem 01. Mai 2014 die zweite Verordnung zur Änderung der Energieeinsparverordnung ihre Gültigkeit erlangt hat. Nach den Paragraphen 16 und 16a EnEV sind die Vermieter/Verkäufer bei der Vermarktung von Immobilien dazu verpflichtet, den Energieausweis der Immobilie auszuhändigen und die energetischen Kennwerte mit in die Inserate aufzunehmen. Bei all unseren inserierten Immobilien haben wir die Vermieter/ Verkäufer nachweislich darauf aufmerksam gemacht und die erforderlichen Energieausweise angefordert.

Bilder

Mitten im Veedel!!! Schicke Büros mit großen Terrassenflächen
Mitten im Veedel!!! Schicke Büros mit großen Terrassenflächen
Mitten im Veedel!!! Schicke Büros mit großen Terrassenflächen
Mitten im Veedel!!! Schicke Büros mit großen Terrassenflächen
Mitten im Veedel!!! Schicke Büros mit großen Terrassenflächen
Mitten im Veedel!!! Schicke Büros mit großen Terrassenflächen
Mitten im Veedel!!! Schicke Büros mit großen Terrassenflächen
Mitten im Veedel!!! Schicke Büros mit großen Terrassenflächen
Mitten im Veedel!!! Schicke Büros mit großen Terrassenflächen
Mitten im Veedel!!! Schicke Büros mit großen Terrassenflächen
Mitten im Veedel!!! Schicke Büros mit großen Terrassenflächen
Mitten im Veedel!!! Schicke Büros mit großen Terrassenflächen
Mitten im Veedel!!! Schicke Büros mit großen Terrassenflächen
Mitten im Veedel!!! Schicke Büros mit großen Terrassenflächen
Mitten im Veedel!!! Schicke Büros mit großen Terrassenflächen
Mitten im Veedel!!! Schicke Büros mit großen Terrassenflächen
Mitten im Veedel!!! Schicke Büros mit großen Terrassenflächen