Büro/Praxis, Miete, Köln
Repräsentative Büroflächen im „Torhaus“ des Gerling-Quartiers

Repräsentative Büroflächen im „Torhaus“ des Gerling-Quartiers

Objektbeschreibung

Das markante Bürogebäude „Torhaus“ bildet mit seiner eleganten Glasfassade den architektonischen Abschluss der Plaza im renommierten Gerling Quartier. Im Erdgeschoss sorgt eine stilvolle Gastronomie für ein lebendiges Zusammenspiel von Arbeiten und Leben – ein Ort, an dem sich urbanes Flair und professionelle Arbeitsatmosphäre harmonisch verbinden.



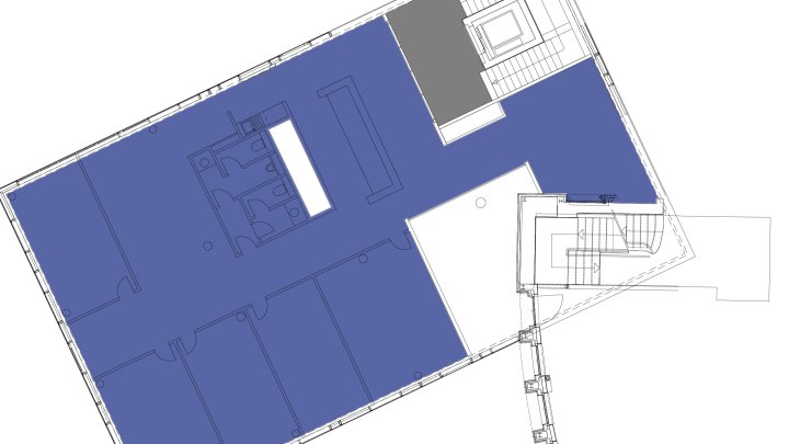
Bereits beim Betreten überzeugt das Gebäude durch einen großzügigen, lichtdurchfluteten Eingangsbereich, der den Weg zu Aufzug und Treppenhaus weist. Im 1. Obergeschoss erwartet Sie eine ca. 258 m² große Bürofläche, die sich flexibel an individuelle Anforderungen anpassen lässt. Ob kleinteilige Büros oder moderne Open-Space-Strukturen – der Grundriss eröffnet vielfältige Gestaltungsmöglichkeiten.



Besonders reizvoll sind die weiten Blickachsen über den Platz des Gerling Quartiers bis hin zum Kölner Dom, die dem Arbeitsumfeld eine außergewöhnliche Atmosphäre verleihen. Stellplätze stehen in den angrenzenden Tiefgaragen zur Verfügung, sodass eine komfortable Anbindung gewährleistet ist.

Lage

- Stadtteil: Altstadt-Nord

- Nahversorgung: Restaurants, Bistros, Geschäfte des täglichen Bedarfs

- Fußweg öffentl. Verkehr: 4 min.

- Fahrzeit Autobahn: 4 min.

- Fahrzeit Hauptbahnhof: 4 min.

- Fahrzeit Flughafen: 25 min.

- Straßenbahn: Linie 12,15 Haltestelle Christophstraße/ Mediapark;

Linie 3, 4, 5, 12,15 Haltestelle Friesenplatz

- Autobahn: A57 Richtung Düsseldorf mit Anbindung an A1 (Kreuz Köln Nord) Richtung Koblenz und Dortmund

Sonstiges

Sie haben noch nicht das richtige gefunden? Sprechen Sie uns an und lassen Sie uns die Arbeit machen. Gemeinsam finden wir Ihre Wunschimmobilie und beraten Sie gerne bei Ihrer Anmietung.



Der guten Ordnung halber, möchten wir Sie darauf aufmerksam machen, dass im Falle eines Vertragsabschlusses, bei nicht als provisionsfrei gekennzeichneten Objekten eine laufzeitabhängige Provision zzgl. gesetzlicher Umsatzsteuer gemäß unserer Allgemeinen Geschäftsbedingungen für Sie als Auftraggeber fällig wird. Die Höhe der Provision können Sie unter www.dgi-koeln.de einsehen.



Wir möchten Sie darüber informieren, dass seit dem 01. Mai 2014 die zweite Verordnung zur Änderung der Energieeinsparverordnung ihre Gültigkeit erlangt hat. Nach den Paragraphen 16 und 16a EnEV sind die Vermieter/Verkäufer bei der Vermarktung von Immobilien dazu verpflichtet, den Energieausweis der Immobilie auszuhändigen und die energetischen Kennwerte mit in die Inserate aufzunehmen. Bei all unseren inserierten Immobilien haben wir die Vermieter/ Verkäufer nachweislich darauf aufmerksam gemacht und die erforderlichen Energieausweise angefordert.

27 € (m²)

Mietpreis pro m²

258 m²

Bürofläche

August 2026 bzw. nach Vereinbarung

Verfügbar ab

Adresse

50670 Köln

Preise & Kosten

Mieter-Provision
Provisionshinweis
provisionspflichtig, siehe Allgemeine Geschäftsbedingungen
Mietpreis pro m²
27 € (m²)
Nebenkosten von
5,50 €

Angaben zur Immobilie

Objektart
Bürofläche
Bürofläche
258 m²
Baujahr
2014
Zustand des Objektes
Modernisiert
Verfügbar ab
August 2026 bzw. nach Vereinbarung

Objektbeschreibung

Das markante Bürogebäude „Torhaus“ bildet mit seiner eleganten Glasfassade den architektonischen Abschluss der Plaza im renommierten Gerling Quartier. Im Erdgeschoss sorgt eine stilvolle Gastronomie für ein lebendiges Zusammenspiel von Arbeiten und Leben – ein Ort, an dem sich urbanes Flair und professionelle Arbeitsatmosphäre harmonisch verbinden.

Bereits beim Betreten überzeugt das Gebäude durch einen großzügigen, lichtdurchfluteten Eingangsbereich, der den Weg zu Aufzug und Treppenhaus weist. Im 1. Obergeschoss erwartet Sie eine ca. 258 m² große Bürofläche, die sich flexibel an individuelle Anforderungen anpassen lässt. Ob kleinteilige Büros oder moderne Open-Space-Strukturen – der Grundriss eröffnet vielfältige Gestaltungsmöglichkeiten.

Besonders reizvoll sind die weiten Blickachsen über den Platz des Gerling Quartiers bis hin zum Kölner Dom, die dem Arbeitsumfeld eine außergewöhnliche Atmosphäre verleihen. Stellplätze stehen in den angrenzenden Tiefgaragen zur Verfügung, sodass eine komfortable Anbindung gewährleistet ist.

Ausstattung

Räume veränderbar
Heizungsart
Zentralheizung
Befeuerung
Fernwärme
Klimatisiert
Aufzug
Personenaufzug
Barrierefrei
DV-Verkabelung

Sonstiges

Sie haben noch nicht das richtige gefunden? Sprechen Sie uns an und lassen Sie uns die Arbeit machen. Gemeinsam finden wir Ihre Wunschimmobilie und beraten Sie gerne bei Ihrer Anmietung.

Der guten Ordnung halber, möchten wir Sie darauf aufmerksam machen, dass im Falle eines Vertragsabschlusses, bei nicht als provisionsfrei gekennzeichneten Objekten eine laufzeitabhängige Provision zzgl. gesetzlicher Umsatzsteuer gemäß unserer Allgemeinen Geschäftsbedingungen für Sie als Auftraggeber fällig wird. Die Höhe der Provision können Sie unter www.dgi-koeln.de einsehen.

Wir möchten Sie darüber informieren, dass seit dem 01. Mai 2014 die zweite Verordnung zur Änderung der Energieeinsparverordnung ihre Gültigkeit erlangt hat.

Nach den Paragraphen 16 und 16a EnEV sind die Vermieter/Verkäufer bei der Vermarktung von Immobilien dazu verpflichtet, den Energieausweis der Immobilie auszuhändigen und die energetischen Kennwerte mit in die Inserate aufzunehmen. Bei all unseren inserierten Immobilien haben wir die Vermieter/ Verkäufer nachweislich darauf aufmerksam gemacht und die erforderlichen Energieausweise angefordert.

Bilder

Repräsentative Büroflächen im „Torhaus“ des Gerling-Quartiers
Repräsentative Büroflächen im „Torhaus“ des Gerling-Quartiers
Repräsentative Büroflächen im „Torhaus“ des Gerling-Quartiers
Repräsentative Büroflächen im „Torhaus“ des Gerling-Quartiers
Repräsentative Büroflächen im „Torhaus“ des Gerling-Quartiers
Repräsentative Büroflächen im „Torhaus“ des Gerling-Quartiers
Repräsentative Büroflächen im „Torhaus“ des Gerling-Quartiers
Repräsentative Büroflächen im „Torhaus“ des Gerling-Quartiers
Repräsentative Büroflächen im „Torhaus“ des Gerling-Quartiers
Repräsentative Büroflächen im „Torhaus“ des Gerling-Quartiers