Büro/Praxis, Miete, Köln
Modernisierte Büro- und Laborflächen in Denkmalimmobilie zu vermieten

Modernisierte Büro- und Laborflächen in Denkmalimmobilie zu vermieten

Objektbeschreibung

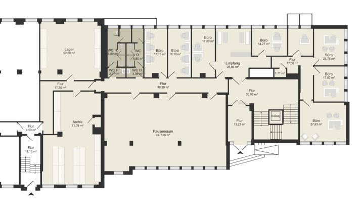
Dieses gepflegte und unter Denkmalschutz stehende Bürohaus aus dem Jahr 1972 wurde kontinuierlich modernisiert und bietet vielseitige Mietflächen für Büro-, Labor- und Lagerzwecke. Die hellen, großzügig geschnittenen Räumlichkeiten ermöglichen eine flexible Nutzung und bieten ausreichend Platz für verschiedene Arbeitsbereiche. Große Fenster sorgen für eine angenehme Belichtung und eine freundliche Arbeitsatmosphäre.



Die Ausstattung entspricht modernen Standards und erfüllt die Anforderungen zeitgemäßer Arbeitsbedingungen. Neben den Büro- und Laborflächen stehen zudem Lagerflächen zur Verfügung, die eine optimale Ergänzung für Unternehmen mit zusätzlichem Platzbedarf darstellen. Im hinteren Bereich befindet sich zudem eine Andienungsstelle, von wo der vorhandene Lastenaufzug genutzt werden könnte.



Die Immobilie überzeugt durch ihre zentrale und gut erreichbare Lage. In unmittelbarer Nähe befinden sich zahlreiche Geschäfte, Restaurants sowie öffentliche Verkehrsmittel, die eine hervorragende Infrastruktur gewährleisten.



Diese Mietflächen sind ideal für Unternehmen, die eine moderne, gut angebundene Arbeitsumgebung suchen.

Lage

- Stadtteil: Braunsfeld

- Nahversorgung: Imbiß, Bistros, Gastronomie, Fitness, Hotel

- Fußweg öffentl. Verkehr: 9 min.

- Fahrzeit Autobahn: 8 min.

- Fahrzeit Hauptbahnhof: 15 min.

- Fahrzeit Flughafen: 30 min.

- Straßenbahn: Linie 13 Haltestelle Oskar-Jäger-Straße/ Gürtel

- Bus: 140 Haltestelle Stolberger Straße

- Autobahn: A1 Richtung Koblenz und Dortmund, A4 Richtung Aachen

Sonstiges

Sie haben noch nicht das richtige gefunden? Sprechen Sie uns an und lassen Sie uns die Arbeit machen. Gemeinsam finden wir Ihre Wunschimmobilie und beraten Sie gerne bei Ihrer Anmietung.



Der guten Ordnung halber, möchten wir Sie darauf aufmerksam machen, dass im Falle eines Vertragsabschlusses, bei nicht als provisionsfrei gekennzeichneten Objekten, eine Provision zzgl. gesetzlicher Umsatzsteuer gemäß unserer Allgemeinen Geschäftsbedingungen für Sie als Auftraggeber fällig wird. Die Höhe der Provision können Sie unter www.dgi-koeln.de einsehen.

14,50 € (m²)

Mietpreis pro m²

2.203 m²

Bürofläche

378 m²

teilbar ab

kurzfristig bzw. nach Vereinbarung

Verfügbar ab

Adresse

50933 Köln

Preise & Kosten

Mieter-Provision
Provisionshinweis
provisionsfrei für den Mieter
Mietpreis pro m²
14,50 € (m²)
Anzahl Freiplatz
2
Nebenkosten von
3,60 €

Angaben zur Immobilie

Objektart
Bürofläche
Bürofläche
2.203 m²
Sonstige Fläche
536 m²
teilbar ab
378 m²
Anzahl Stellplätze
2
Baujahr
1972
Zustand des Objektes
Modernisiert
Verfügbar ab
kurzfristig bzw. nach Vereinbarung

Objektbeschreibung

Dieses gepflegte und unter Denkmalschutz stehende Bürohaus aus dem Jahr 1972 wurde kontinuierlich modernisiert und bietet vielseitige Mietflächen für Büro-, Labor- und Lagerzwecke. Die hellen, großzügig geschnittenen Räumlichkeiten ermöglichen eine flexible Nutzung und bieten ausreichend Platz für verschiedene Arbeitsbereiche. Große Fenster sorgen für eine angenehme Belichtung und eine freundliche Arbeitsatmosphäre.

Die Ausstattung entspricht modernen Standards und erfüllt die Anforderungen zeitgemäßer Arbeitsbedingungen. Neben den Büro- und Laborflächen stehen zudem Lagerflächen zur Verfügung, die eine optimale Ergänzung für Unternehmen mit zusätzlichem Platzbedarf darstellen. Im hinteren Bereich befindet sich zudem eine Andienungsstelle, von wo der vorhandene Lastenaufzug genutzt werden könnte.

Die Immobilie überzeugt durch ihre zentrale und gut erreichbare Lage. In unmittelbarer Nähe befinden sich zahlreiche Geschäfte, Restaurants sowie öffentliche Verkehrsmittel, die eine hervorragende Infrastruktur gewährleisten.

Diese Mietflächen sind ideal für Unternehmen, die eine moderne, gut angebundene Arbeitsumgebung suchen.

Ausstattung

Räume veränderbar
Heizungsart
Zentralheizung
Befeuerung
Fernwärme
Klimatisiert
Aufzug
Personenaufzug
DV-Verkabelung

Sonstiges

Sie haben noch nicht das richtige gefunden? Sprechen Sie uns an und lassen Sie uns die Arbeit machen. Gemeinsam finden wir Ihre Wunschimmobilie und beraten Sie gerne bei Ihrer Anmietung.

Der guten Ordnung halber, möchten wir Sie darauf aufmerksam machen, dass im Falle eines Vertragsabschlusses, bei nicht als provisionsfrei gekennzeichneten Objekten, eine Provision zzgl. gesetzlicher Umsatzsteuer gemäß unserer Allgemeinen Geschäftsbedingungen für Sie als Auftraggeber fällig wird. Die Höhe der Provision können Sie unter www.dgi-koeln.de einsehen.

Bilder

Modernisierte Büro- und Laborflächen in Denkmalimmobilie zu vermieten
Modernisierte Büro- und Laborflächen in Denkmalimmobilie zu vermieten
Modernisierte Büro- und Laborflächen in Denkmalimmobilie zu vermieten
Modernisierte Büro- und Laborflächen in Denkmalimmobilie zu vermieten
Modernisierte Büro- und Laborflächen in Denkmalimmobilie zu vermieten
Modernisierte Büro- und Laborflächen in Denkmalimmobilie zu vermieten
Modernisierte Büro- und Laborflächen in Denkmalimmobilie zu vermieten
Modernisierte Büro- und Laborflächen in Denkmalimmobilie zu vermieten
Modernisierte Büro- und Laborflächen in Denkmalimmobilie zu vermieten
Modernisierte Büro- und Laborflächen in Denkmalimmobilie zu vermieten
Modernisierte Büro- und Laborflächen in Denkmalimmobilie zu vermieten
Modernisierte Büro- und Laborflächen in Denkmalimmobilie zu vermieten
Modernisierte Büro- und Laborflächen in Denkmalimmobilie zu vermieten
Modernisierte Büro- und Laborflächen in Denkmalimmobilie zu vermieten
Modernisierte Büro- und Laborflächen in Denkmalimmobilie zu vermieten
Modernisierte Büro- und Laborflächen in Denkmalimmobilie zu vermieten
Modernisierte Büro- und Laborflächen in Denkmalimmobilie zu vermieten
Modernisierte Büro- und Laborflächen in Denkmalimmobilie zu vermieten
Modernisierte Büro- und Laborflächen in Denkmalimmobilie zu vermieten
Modernisierte Büro- und Laborflächen in Denkmalimmobilie zu vermieten
Modernisierte Büro- und Laborflächen in Denkmalimmobilie zu vermieten